Thiết kế nhà cấp 4 60m2 2 phòng ngủ được các chủ đầu tư yêu thích khi sở hữu rất nhiều ưu điểm về công năng, tính thẩm mỹ và giá cả vô cùng phải chăng. Nhà cấp 4 với vẻ đẹp truyền thống, gần gũi mang đến cho bạn không gian sống thoải mái và gần gũi hơn với thiên nhiên. Cùng chiêm ngưỡng những mẫu nhà cấp 4 60m2 2 phòng ngủ đẹp, thịnh hành nhất hiện nay ngay trong bài viết dưới đây của Hasa Home nhé.
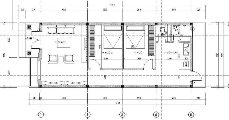
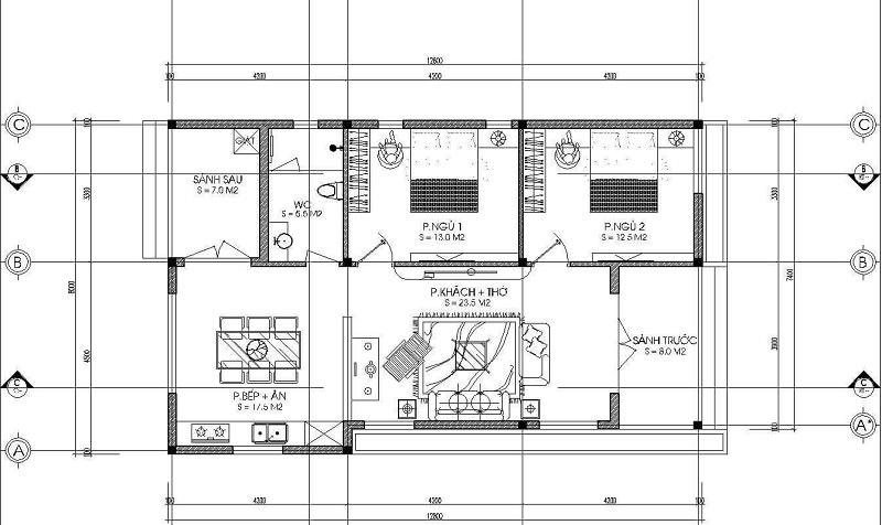
Bản vẽ công năng thiết kế nhà cấp 4 60m2 2 phòng ngủ
Bản vẽ công năng của mẫu thiết kế nhà cấp 4 60m2 2 phòng ngủ có vai trò vô cùng quan trọng khi thể hiện chi tiết từng không gian trong căn nhà. Trong đó bản vẽ thiết kế này cần đảm bảo được tính hài hòa, bố trí không gian phù hợp để có thể tận dụng được tối đa diện tích sử dụng.
Đối với bản vẽ nhà cấp 4 diện tích 60m2 thì sẽ bao gồm các khu vực công năng như phòng khách, phòng bếp kết hợp phòng ăn, phòng ngủ, WC và sân phơi. Để giúp các chủ đầu tư dễ dàng hình dung và có thể tham khảo thêm nhiều ý tưởng độc đáo, Hasa Home đã tổng hợp những bản vẽ tối ưu công năng và được nhiều kiến trúc sư đánh giá cao hiện nay. Tham khảo ngay!



Tham khảo các mẫu thiết kế nhà cấp 4 60m2 2 phòng ngủ đẹp 2026
Hasa Home xin chia sẻ đến các chủ đầu tư những mẫu thiết kế nhà cấp 4 60m2 2 phòng ngủ đẹp, tối ưu công năng và đang được yêu thích nhất hiện nay. Tham khảo ngay bên dưới đây.
Mẫu thiết kế nhà cấp 4 60m2 2 phòng ngủ mái tôn đơn giản
Xu hướng thiết kế nhà cấp 4 2 phòng ngủ 60m2 mái tôn tối giản luôn là sự lựa chọn hàng đầu của rất nhiều chủ đầu tư có nguồn ngân sách hạn chế. Nhà cấp 4 mái tôn với kiến trúc nhẹ nhàng luôn mang đến năng lượng tích cực và sự tươi mới, trẻ trung. Đặc biệt, thời gian thi công của mẫu nhà này sẽ nhanh hơn so với các loại mẫu nhà khác.



Xem thêm:
- 30+ Mẫu nhà cấp 4 đẹp 5×25 đang được yêu thích 2026
Mẫu nhà cấp 4 60m2 2 phòng ngủ mái Thái hiện đại
Kiến trúc độc đáo của những mẫu thiết kế nhà cấp 4 60m2 2 phòng ngủ mái Thái đang thu hút được rất nhiều sự quan tâm của các chủ đầu tư hiện nay. Nhà mái Thái có độ bền tương đối cao, có khả năng chống nóng và chống thấm cực tốt nên rất phù hợp với điều kiện thời tiết tại nước ta.
Có rất nhiều màu sắc mái Thái khác nhau mà quý khách có thể lựa chọn theo sở thích nhưng phổ biến nhất vẫn là màu đỏ và màu xanh.



Xem thêm:
- 35+ Mẫu thiết kế nhà cấp 4 ngang 6m đẹp ấn tượng năm 2026
Mẫu thiết kế nhà cấp 4 60m2 2 phòng ngủ mái bằng đẹp mắt
Nếu 2 loại mái Thái và mái tôn ở trên chưa gây nhiều ấn tượng đối với chủ đầu tư thì những mẫu thiết kế nhà cấp 4 60m2 2 phòng ngủ mái bằng dưới đây chắc chắn sẽ không làm bạn thất vọng. Tính thẩm mỹ của những căn nhà mái bằng được đánh giá rất cao, khó lỗi thời và phù hợp với nhiều phong cách kiến trúc khác nhau từ đơn giản đến hiện đại hay thậm trí là sang trọng. Mặt tiền nhà cấp 4 mái bằng gây ấn tượng với những đường nét độc đáo, thu hút được sự chú ý của người nhìn mà khó loại mái nào có được.



Xem thêm:
- 20+ Mẫu thiết kế nhà cấp 4 6x12m đẹp đầy đủ tiện nghi
Mẫu thiết kế nhà cấp 4 60m2 2 phòng ngủ chữ L
Những mẫu nhà cấp 4 60m2 2 phòng ngủ hình chữ L được nhiều chủ đầu tư yêu thích khi có thể tận dụng tối đa diện tích sử dụng và có thể bố trí thêm nhiều tiện ích đi kèm. Nhà chữ L sở hữu diện mạo độc đáo và rất phù hợp với phong cách kiến trúc hiện đại. Phần lớn các chủ đầu tư lựa chọn nhà chữ L 60m2 vì có thể tận dụng được khoảng sân vườn cho nhiều công năng khác nhau như khu vui chơi, tiểu cảnh, khu vực uồng trà,…



Xem thêm:
- 35+ Mẫu nhà cấp 4 chữ L 3 phòng ngủ đẹp, hiện đại năm 2026
Mẫu nhà cấp 4 60m2 2 phòng ngủ có gác lửng tiện ích
Xu hướng thiết kế nhà cấp 4 60m2 2 phòng ngủ có gác lửng đang ngày càng trở nên phổ biến hơn nhờ mang vô vàn ưu điểm mà phương án này đem lại. Nhà cấp 4 60m2 có gác lửng giúp tận dụng được thêm khoảng diện tích để bố trí làm phòng ngủ, phòng làm việc, phòng thờ,….
Thiết kế của các mẫu nhà gác lửng hiện đại vô cùng bắt mắt, giúp ngôi nhà tăng thêm diện tích sử dụng nhưng vẫn giúp tối ưu chi phí hơn so với những phương án khác.



Xem thêm:
- 35+ Mẫu thiết kế nhà cấp 4 6x15m 3 phòng ngủ đẹp, thu hút năm 2026
Mẫu thiết kế nhà cấp 4 60m2 2 phòng ngủ có sân vườn
Những mẫu thiết kế nhà cấp 4 60m2 2 phòng ngủ có thêm sân vườn giúp mang đến không gian sống tươi mát và gần gũi hơn với thiên nhiên nên được rất nhiều chủ đầu tư lựa chọn trong thời gian gần đây. Nhà cấp 4 60m2 có sân vườn được đánh giá cao nhờ cách bố trí khuôn viên sân vườn đẹp mắt cùng rất nhiều tiện ích đi kèm.
Kiến trúc nhà vườn cấp 4 nổi bật với vẻ đẹp vô cùng giản dị, yên bình nhưng vẫn có được sức hút riêng nên rất phù hợp với vùng cư dân xa thành thị hoặc vùng nông thôn.



Dự tính kinh phí xây dựng nhà cấp 4 60m2 2 phòng ngủ
Chuẩn bị kinh phí xây dựng nhà cấp 4 60m2 2 phòng ngủ là điều mà các chủ đầu tư cần quan tâm hàng đầu hiện nay. Kinh phí xây nhà cấp 4 60m2 cần được tính toán chi tiết tất cả các hạng mục cùng với những khoản phí phát sinh trong quá trình thi công. Cách tính chi phí chính xác nhất được Hasa Home tổng hợp như sau:
- Chi phí thuê nhân công xây dựng sẽ dao động trong khoảng từ 1.300.000 – 1.500.000 VNĐ/m2. Với 60m2 thì chủ đầu tư cần chi khoảng 78 đến 90 triệu đồng cho tiền nhân công (chưa bao gồm phí vật liệu xây dựng).
- Lựa chọn gói dịch vụ thi công phần thô thì chủ đầu tư sẽ được hỗ trợ thuê nhân công và mua vật liệu loại thô. Giá trung bình sẽ vào khoảng 4.000.000 – 5.000.000 VNĐ/m2. Như vậy, chủ đầu tư sẽ cần chi trả khoảng 240 triệu đến 300 triệu đồng cho dịch vụ này.
- Lựa chọn gói thi công hoàn thiện trọn gói bao gồm nhân công, vật liệu thô và vật liệu hoàn thiện (chưa bao gồm nội thất). Giá gói thi công hoàn thiện dao động từ 5.500.000 – 7.000.000 VNĐ/m2 . Với mẫu nhà cấp 4 60m2 thì tổng chi phí sẽ giao đồng từ 330 triệu đồng đến 420 triệu đồng.

Hasa Home – Công ty chuyên thiết kế nhà cấp 4 60m2 2 phòng ngủ uy tín
Đối với các thiết kế nhà cấp 4 60m2 2 phòng ngủ thì điều quan trọng nằm ở cách tổ chức không gian sống sao cho thoải mái và thuận tiện. Hasa Home khai thác tối đa diện tích sàn, tạo sự liên kết linh hoạt giữa các khu vực sinh hoạt của căn nhà. Với 5 năm hoạt động trong nghề, chúng tôi rất tự hào khi được nhiều gia chủ yêu mến tin lựa chọn, một phần nhờ đội ngũ kiến trúc sư, kỹ sư giàu kinh nghiệm với lối tư duy thực tế, luôn mang đến những phương án thiết kế không chỉ thẩm mỹ và còn vô cùng tiện nghi, giúp gia chủ cảm nhận được rõ giá trị của không gian sống.

Quý đọc giả đã được chiêm ngưỡng thêm về các mẫu thiết kế nhà cấp 4 60m2 2 phòng ngủ đang được yêu thích trong bài viết trên của Hasa Home . Hãy nhanh tay liên hệ với chúng tôi để được tư vấn và giải đáp những thắc mắc một cách chi tiết nhất.
Công ty thiết kế kiến trúc Hasa Home
SĐT: 0866 868 926
Website: https://hasahome.com/
Địa chỉ văn phòng: Số 4 Ngõ 123 Trung Kính, Phường Yên Hòa, TP Hà Nội
Nguồn hình ảnh: Sưu tầm


Bài viết liên quan
30+ Mẫu nhà cấp 4 chữ L giá 300 triệu ấn tượng năm 2026
35+ Mẫu thiết kế nhà cấp 4 6x15m 3 phòng ngủ đẹp, thu hút năm 2026
35+ Mẫu nhà cấp 4 chữ L mái tôn đẹp, giá tốt năm 2026
20+ Mẫu thiết kế nhà cấp 4 không gian mở đẹp, sang trọng
Tổng hợp 25+ mẫu nhà cấp 4 giá 350 triệu ở nông thôn
35+ Mẫu thiết kế nhà cấp 4 ngang 6m đẹp ấn tượng năm 2026