15+ Mẫu thiết kế nhà phố 4x16m đẹp, tận dụng tối đa diện tích

15+ Mẫu thiết kế nhà phố 4x16m đẹp, tận dụng tối đa diện tích

Mẫu thiết kế nhà phố 4x16m là lựa chọn được nhiều gia chủ yêu thích nhờ khả năng tối ưu về không gian và đảm bảo tính thẩm mỹ. Trong đó, mẫu nhà phố này xuất hiện rất phổ biến tại khu vực thành thị, nơi có quỹ đất xây dựng bị hạn chế. Trong bài viết sau, hãy cùng Hasa Home điểm qua một số mẫu nhà phố 4x16m đẹp và đầy đủ tiện nghi nhất năm 2026 để quý khách tham khảo thêm.

Đặc điểm nổi bật của mẫu thiết kế nhà phố 4x16m

Mẫu thiết kế nhà phố 4x16m là mô hình nhà ở khá quen thuộc với nhiều chủ đầu tư hiện nay. Một số đặc điểm nổi bật mà quý khách cần nắm rõ đó là:

  • Nhà phố 4x16m có diện tích khoảng 64m2 một mặt sàn, nếu gia đình của bạn có khoảng 3 – 5 người thì nên xây từ 2 – 3 tầng để đảm bảo đầy đủ công năng sử dụng
  • Nhà 4x16m có thiết kế dạng hình ống chạy dài về phía sau, vì vậy xu hướng bố trí nội thất theo chiều dọc để đảm bảo sự tiện nghi và tính thẩm mỹ được nhiều người lựa chọn.
  • Mẫu thiết kế nhà phố 4x16m có mặt tiền khá hẹp chỉ dài 4m, nên gia chủ cần thiết kế cẩn thận để tạo điểm nhấn thu hút, đồng thời tối ưu hóa không gian sao cho phù hợp với tổng thể căn nhà.
  • Nhà 4x16m thường sử dụng hệ mái bằng là chủ yếu, vừa tiết kiệm chi phí vừa dễ nâng cấp và sửa chữa, đồng thời phù hợp với nhiều phong cách thiết kế kiến trúc khác nhau.
  • Nhà ống 4x16m thường xuất hiện khá nhiều ở khu vực thành thị do đặc điểm diện tích đất nhỏ hẹp, phù hợp với nhu cầu xây dựng ở những nơi có mật độ cư dân cao.
Những đặc điểm của mẫu thiết kế nhà phố 4x16m
Những đặc điểm của mẫu thiết kế nhà phố 4x16m

Mặt tiền ấn tượng của mẫu thiết kế nhà phố 4x16m

Với chiều dài mặt tiền chỉ 4m, nên các gia chủ rất quan tâm đến việc thiết kế mặt tiền thế nào để tạo được vẻ đẹp ấn tượng nhất với người nhìn. Ngày nay, các mẫu thiết kế mặt tiền nhà phố 4x16m cũng trở nên đa dạng hơn. Sau đây là một vài mẫu mặt tiền ấn tượng mà quý khách có thể tham khảo qua.

Mẫu thiết kế mặt tiền nhà phố 4x16m với nét trẻ trung, tươi mới
Mẫu thiết kế mặt tiền nhà phố 4x16m với nét trẻ trung, tươi mới
Mặt tiền mẫu thiết kế nhà phố 4x16m phong cách hiện đại, hợp xu hướng
Mặt tiền mẫu thiết kế nhà phố 4x16m phong cách hiện đại, hợp xu hướng
Mẫu thiết kế mặt tiền nhà phố 4x16m năng động, cá tính
Mẫu thiết kế mặt tiền nhà phố 4x16m năng động, cá tính

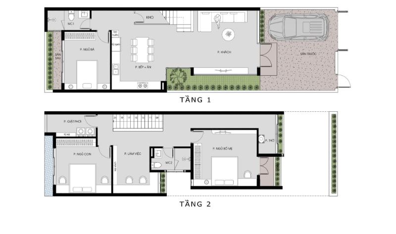
Bố trí mặt bằng công năng mẫu thiết kế nhà phố 2 tầng 4x16m

Thiết kế mặt bằng công năng cho nhà phố 4x16m là một trong những công việc vô cùng quan trọng cần được gia chủ và kiến trúc sư lưu tâm đến. Đối với các mẫu nhà phố thì bên trong căn nhà cần được sắp xếp logic, thuận tiện cho việc sinh hoạt của các thành viên.

Mặt bằng công năng tầng 1 nhà phố 4x16m

Mặt bằng công năng tầng 1 trong nhà ống 4x16m bao gồm các không gian sinh hoạt chung như phòng khách, phòng ăn, phòng bếp, 1 phòng ngủ, WC chung và sân sau. Các khu vực này cần có cách bố trí hài hòa, đảm bảo thuận tiện cho việc di chuyển của các thành viên trong gia đình.

Mặt bằng công năng tầng 2 nhà phố 4x16m

Tiếp theo là không gian tầng 2 của mẫu thiết kế nhà phố 4x16m với các khu vực sinh hoạt riêng của từng thành viên như phòng ngủ, phòng làm việc và sân phơi. Trong đó, phòng ngủ sẽ được thiết kế với diện tích và công năng khác nhau theo nhu cầu sử dụng của từng thành viên trong gia đình. Gia chủ có thể xây thêm tầng tum để dành cho khu vực phòng thờ cực kỳ hợp lý.

Tham khảo mặt bằng công năng nhà phố 4x16m
Tham khảo mặt bằng công năng nhà phố 4x16m

Những mẫu thiết kế nhà phố 4x16m được yêu thích nhất 2025

Hiện nay các gia chủ đều đang rất quan tâm đến các mẫu thiết kế nhà phố 4x16m về mặt tiền, cách bố trí công năng hay màu sắc sử dụng,…. Dưới đây sẽ là những mẫu nhà ống 4x16m được yêu thích nhất mà chủ đầu tư có thể tham khảo để tìm được phương án phù hợp nhất.

Mẫu thiết kế nhà phố 4x16m 1 trệt 1 lầu tối giản

Các mẫu thiết kế nhà phố 4x16m 1 trệt 1 lầu theo phong cách tối giản được nhiều gia chủ ưa chuộng khi mang lại không gian sống rộng rãi và thoải mái hơn. Mẫu nhà phố theo phong cách tối giản sẽ có cách thiết kế riêng biệt là không sử dụng quá nhiều chi tiết cầu kỳ gây tốn diện tích. Bên cạnh đó, màu sắc chủ đạo của căn nhà cũng là những tone màu nhạt để đồng bộ với phong cách thiết kế.

Mẫu thiết kế nhà phố 1 trệt 1 lầu 4x16m theo phong cách tối giản
Mẫu thiết kế nhà phố 1 trệt 1 lầu 4x16m theo phong cách tối giản
Mẫu thiết kế nhà phố 4x16m tối giản thu hút với nét đẹp mộc mạc, giản dị
Mẫu thiết kế nhà phố 4x16m tối giản thu hút với nét đẹp mộc mạc, giản dị
Gam màu chủ đạo thuộc tone màu nhạt phù hợp với phong cách kiến trúc
Gam màu chủ đạo thuộc tone màu nhạt phù hợp với phong cách kiến trúc

Xem thêm:

Mẫu thiết kế nhà phố 3 tầng 4x16m phong cách trẻ trung

Mẫu thiết kế nhà phố 4x16m 3 tầng theo phong cách trẻ trung thu hút sự chú ý của chủ đầu tư với diện mạo vô cùng độc đáo và mới lạ. Kiến trúc của những mẫu nhà 3 tầng này luôn có sự tươi mới và tràn đầy năng lượng. Đặc biệt, phần mặt tiền của căn nhà luôn có những điểm nhấn bắt mắt nhờ có cách kết hợp các vật liệu với nhau một cách hài hòa.

Mẫu thiết kế nhà phố 3 tầng 4x16m theo phong cách trẻ trung
Mẫu thiết kế nhà phố 3 tầng 4x16m theo phong cách trẻ trung
Mẫu thiết kế nhà phố 4x16m được yêu thích bởi nhiều chủ đầu tư
Mẫu thiết kế nhà phố 4x16m được yêu thích bởi nhiều chủ đầu tư
Kiến trúc độc đáo và ấn tượng của các mẫu nhà ống 3 tầng 4x16m
Kiến trúc độc đáo và ấn tượng của các mẫu nhà ống 3 tầng 4x16m

Xem thêm:

Mẫu thiết kế nhà phố 4x16m có ban công tiện lợi

Các mẫu nhà phố 4x16m có ban công sẽ dễ dàng tạo ấn tượng với gia chủ khi có mặt tiền nổi bật. Trong đó, khu vực ban công sẽ được thiết kế theo xu hướng hiện đại bằng việc sử dụng kính cường lực và trang trí thêm bằng cây xanh cực kỳ ấn tượng. Những mẫu nhà phố này còn thu hút được sự chú ý bởi cách phối màu sơn tinh tế giúp không gian trở nên sống động và có điểm nhấn hơn.

Mẫu nhà phố 4x16m có ban công đẹp được nhiều chủ đầu tư lựa chọn
Mẫu nhà phố 4x16m có ban công đẹp được nhiều chủ đầu tư lựa chọn
Mẫu thiết kế nhà phố 4x16m với ban công bằng các chất liệu hiện đại
Mẫu thiết kế nhà phố 4x16m với ban công bằng các chất liệu hiện đại
Bố trí các loại cây xanh ở khu vực ban công thêm gần gũi với thiên nhiên
Bố trí các loại cây xanh ở khu vực ban công thêm gần gũi với thiên nhiên

Xem thêm:

Mẫu thiết kế nhà phố diện tích 4x16m phong cách hiện đại

Các mẫu thiết kế nhà phố 4x16m theo phong cách hiện đại gây chú ý với các đường nét vuông vắn, tối giản và tập chung vào công năng sử dụng. Với mẫu nhà phố này hệ mái bằng sẽ được sử dụng nhiều nhất vì có vẻ ngoài chắc chắn, hiện đại và không bao giờ lỗi thời. Tone màu sử dụng sẽ là những tone màu sáng như trắng, nâu nhạt, be để đồng bộ với phong cách thiết kế kiến trúc.

Mẫu thiết kế nhà phố diện tích 4x16m theo phong cách hiện đại
Mẫu thiết kế nhà phố diện tích 4x16m theo phong cách hiện đại
Mẫu thiết kế nhà phố 4x16m hiện đại được chủ đầu tư yêu thích
Mẫu thiết kế nhà phố 4x16m hiện đại được chủ đầu tư yêu thích
Chiêm ngưỡng mặt tiền ấn tượng của các mẫu nhà ống 4x16m hiện đại
Chiêm ngưỡng mặt tiền ấn tượng của các mẫu nhà ống 4x16m hiện đại

Xem thêm:

Mẫu thiết kế nhà phố 4x16m mái bằng trẻ trung, năng động

Mẫu thiết kế nhà phố 4x16m mái bằng có nét thẩm mỹ khó lỗi thời nên vẫn luôn là sự lựa chọn hàng đầu của rất nhiều gia chủ hiện nay. Ngoài những ưu điểm nổi bật về diện mạo trẻ trung và khỏe khoắn, nhà mái bằng còn có thời gian xây dựng ngắn, chi phí thấp hơn so với những mẫu nhà mái Thái hay mái Nhật.

Ngoài ra, chủ đầu tư có thể dễ dàng lựa chọn phong cách kiến trúc cho căn nhà như đơn giản, hiện đại đến sang trọng,…

Mẫu thiết kế nhà phố mái bằng 4x16m với vẻ đẹp trẻ trung
Mẫu thiết kế nhà phố mái bằng 4x16m với vẻ đẹp trẻ trung
Mẫu thiết kế nhà phố 4x16m mái bằng sở hữu nhiều ưu điểm nổi bật
Mẫu thiết kế nhà phố 4x16m mái bằng sở hữu nhiều ưu điểm nổi bật
Mẫu nhà phố 4x16m mái bằng giúp tối ưu chi phí và thời gian thi công
Mẫu nhà phố 4x16m mái bằng giúp tối ưu chi phí và thời gian thi công

Bài viết trên của Hasa Home đã mang đến cho quý độc giả những mẫu thiết kế nhà phố 4x16m ấn tượng và nổi bật nhất năm 2026. Nếu còn bất kỳ thắc mắc nào, vui lòng liên hệ với chúng tôi qua thông tin bên dưới để được giải đáp một cách chi tiết.

Công ty thiết kế kiến trúc Hasa Home

SĐT: 0866 868 926

Website: https://hasahome.com/

Địa chỉ văn phòng: Số 4 Ngõ 123 Trung Kính, Phường Yên Hòa, TP Hà Nội

Nguồn hình ảnh: Sưu tầm

Để lại một bình luận

Email của bạn sẽ không được hiển thị công khai. Các trường bắt buộc được đánh dấu *