Mẫu thiết kế nhà ống 6x20m xuất hiện khá phổ biến ở khu vực thành thị, nơi bị hạn chế khá nhiều về quỹ đất. Mẫu nhà ống 6x20m có diện tích vừa phải giúp đáp ứng nhu cầu sinh hoạt cho các gia đình có từ 3 – 5 thành viên. Các gia chủ đang muốn tham khảo nhiều mẫu nhà ống 6x20m tiện nghi, sang trọng thì đừng nên bỏ qua bài viết sau của Hasa Home.
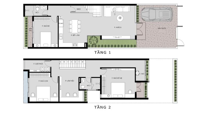
Bản vẽ thiết kế nhà ống 6x20m tối ưu công năng
Thiết kế công năng cho nhà ống 6x20m là một trong những công đoạn vô cùng quan trọng. Sự tiện nghi, hài hòa của căn nhà phụ thuộc vào cách sắp xếp và bố trí không gian khoa học của chủ đầu tư. Thông thường các mẫu thiết kế nhà ống 6x20m sẽ được xây từ 2 – 3 tầng để giúp đáp ứng đầy đủ công năng sử dụng cho các thành viên trong gia đình.
Tuy nhiên, cũng cần phải đảm bảo các yếu tố thẩm mỹ và sự tiện nghi để tạo được tính logics cho căn nhà. Cụ thể, khu vực tầng 1 sẽ bao gồm các không gian sinh hoạt chung như phòng khách, phòng bếp, phòng ngủ, WC. Tiếp theo là khu vực tầng 2 sẽ bao gồm các phòng ngủ, phòng sinh hoạt riêng cho từng thành viên.

Phối cảnh mặt tiền nhà ống 6x20m đẹp mắt
Mặt tiền nhà ống 6x20m là điểm nhấn thu hút sự chú ý của người nhìn đầu tiên, giúp thể hiện được phong cách kiến trúc và gu thẩm mỹ của chủ đầu tư. Hiện nay đã có rất nhiều ý tưởng thiết kế mặt tiền độc đáo, mới lạ gây được ấn tượng với rất nhiều khách hàng. Cụ thể, quý khách có thể tham khảo qua một số mẫu thiết kế mặt tiền nhà ống 6x20m bắt mắt dưới đây:



Những mẫu thiết kế nhà ống 6x20m được yêu thích nhất 2026
Có thể thấy được nhu cầu thiết kế nhà ống 6x20m của các chủ đầu tư hiện nay đang ngày càng phổ biến hơn rất nhiều, đặc biệt là ở các khu vực thành thị đông dân cư. Quý khách có thể tham khảo qua một số ý tưởng thiết kế nhà ống diện tích 6x20m đang thịnh hành dưới đây:
Mẫu thiết kế nhà ống 6x20m mái Thái hiện đại
Xu hướng thiết kế nhà ống 6x20m dạng mái Thái hiện đại sở hữu diện mạo vô cùng cuốn hút, sang trọng và cực kỳ độc đáo. Mẫu nhà ống mái Thái này sở hữu nhiều rất nhiều ưu điểm nổi bật như khả năng chống nóng, chống ẩm mốc tốt, chi phí tối ưu và đặc biệt là rất phù hợp với điều kiện thời tiết tại nước ta.



Mẫu nhà ống 6x20m mái lệch khác biệt
Các mẫu thiết kế nhà ống 6x20m dạng mái lệch có nét đẹp độc đáo nên đang được săn đón rất nhiều ở thời điểm hiện tại. Mẫu nhà này có ưu điểm là thoát nước tốt nên có thể tránh được các tính trạng ẩm mốc hay gặp ở một số loại mái khác. Ngoài ra, mẫu nhà này có thể đáp ứng đa dạng nhu cầu sử dụng khác nhau từ sinh hoạt gia đình đến kinh doanh buôn bán.



Xem thêm:
- 15+ Mẫu thiết kế nhà ống 1 tầng 6x20m đẹp nhất 2026
Mẫu thiết kế nhà ống 6x20m mái bằng đơn giản
Những mẫu nhà ống 6x20m dạng mái bằng nổi bật với vẻ đẹp hiện đại, hợp xu hướng và không bao giờ lỗi thời theo thời gian. Nhà mái bằng có ưu thế là mang lại cảm giác khỏe khoắn, chắc chắn, chi phí xây dựng không quá cao và đặc biệt là rất dễ dàng trong việc sửa chữa hay nâng cấp. Ngoài ra, mẫu nhà ống mái bằng này còn có thể phù hợp với nhiều phong cách khác nhau từ đơn giản, hiện đại, sang trọng,..



Mẫu nhà ống 2 tầng 1 tum diện tích 6x20m
Những mẫu thiết kế nhà ống 6x20m 2 tầng 1 tum sẽ phù hợp với những gia đình có từ 4 – 5 thành viên với đầy đủ các công năng cơ bản như phòng khách, phòng thờ, phòng bếp + ăn, phòng ngủ và nhà vệ sinh.
Trong đó công năng sẽ được bố trí như sau. Khu vực 1 tầng sẽ là không gian sinh hoạt chung với phòng khách, phòng bếp và 1 phòng ngủ (cho vợ chồng gia chủ hoặc cho ông bà lớn tuổi). Khu vực tầng 2 sẽ là các không gian sinh hoạt riêng với 2 -3 phòng ngủ và 1 phòng WC chung. Còn khu vực tầng tum sẽ được sử dụng làm phòng thờ và sân phơi.



Xem thêm:
- Những mẫu nhà ống 3 tầng có gác lửng đẹp và tối ưu công năng
Mẫu thiết kế nhà ống 6x20m có sân vườn gần gũi thiên nhiên
Mẫu thiết kế nhà ống 6x20m có thêm không gian sân vườn xanh mát chính là lựa chọn của rất nhiều chủ đầu tư trong thời gian gần đây. Việc bố trí không gian sân vườn phía trước nhà giúp đón được nhiều gió và ánh sáng tự nhiên hơn. Ngoài ra, với không gian sân vườn thì bạn có thể kết hợp cùng nhiều tiện ích khác như gara để xe, hòn non bộ, khu uống trà,… đều rất phù hợp.



Xem thêm:
- 30+ Mẫu nhà ống cấp 4 đẹp, dễ thực hiện và tối ưu chi phí
Bài viết trên của Hasa Home đã mang đến cho bạn những mẫu thiết kế nhà ống 6x20m ấn tượng và đang được yêu thích trong năm 2026. Nếu quý khách hàng còn bất kỳ thắc mắc nào có thể liên hệ ngay với chúng tôi theo thông tin bên dưới đây để được giải đáp chi tiết.
Công ty thiết kế kiến trúc Hasa Home
SĐT: 0866 868 926
Website: https://hasahome.com/
Địa chỉ văn phòng: Số 4 Ngõ 123 Trung Kính, Phường Yên Hòa, TP Hà Nội
Nguồn hình ảnh: Sưu tầm


Bài viết liên quan
35+ Mẫu nhà mái ngói 1 tầng đẹp, đơn giản và đầy đủ tiện nghi
Tổng hợp các mẫu thiết kế nhà ống 2 tầng 1 tum 5x20m đẹp mà tiện nghi
15+ Mẫu thiết kế nhà ống 1 tầng 6x20m đẹp nhất 2026
35+ Mẫu thiết kế nhà 4x10m có tầng lửng ấn tượng năm 2026
15+ Mẫu thiết kế nhà ống 2 tầng 3x20m tối ưu công năng 2026
65+ Mẫu nhà cấp 4 nông thôn 250 triệu đẹp ấn tượng năm 2026