Thiết kế nhà ống 2 tầng 5x16m đang là xu hướng cực kỳ thịnh hành hiện nay khi mang đến một không gian sống vừa tiện nghi, vừa hiện đại. Nhà ống 2 tầng 5x16m có thể đáp ứng được nhu cầu sử dụng cho gia đình 4 – 5 thành viên nhờ thiết kế khoa học và tối ưu công năng. Bài viết dưới đây của Hasa Home sẽ giới thiệu những mẫu nhà ống 2 tầng 5x16m đẹp đang được yêu thích nhất hiện nay để bạn đọc tham khảo.
Mẫu thiết kế nhà ống 2 tầng 5x16m có ưu nhược điểm gì?
Mẫu thiết kế nhà ống 2 tầng 5x16m khá phổ biến ở các khu đô thị hiện nay. Vậy mẫu nhà này có ưu nhược điểm như thế nào? Cùng Hasa Home tìm hiểu chi tiết ngay bên dưới đây.
Ưu điểm
Xây nhà ống 2 tầng với không gian sống được phân chia thành nhiều không gian khác nhau, giúp mang đến cảm giác thoải mái và riêng tư cho từng thành viên. Trong đó, các không gian sinh hoạt chung được đặt ở tầng 1 và các không gian riêng tư sẽ được bố trí tại tầng 2. So với nhà một tầng, mẫu nhà 2 tầng diện tích 5x16m sẽ giúp không gian sống của gia đình bạn được đầy đủ hơn.

Nhược điểm
Chi phí xây dựng nhà 2 tầng kích thước 5x16m sẽ cao hơn so với dạng nhà ống 1 tầng hay nhà 1 tầng trệt 1 tầng lầu. Ngoài ra, yêu cầu về thời gian và công sức hoàn thiện nhà 2 tầng đòi hỏi cao hơn so với nhà 1 tầng. Vì thế, bạn phải cân nhắc và lựa chọn đơn vị xây dựng uy tín và có nhiều kinh nghiệm.

Xem thêm:
- 60+ Mẫu thiết kế nhà ống 2 tầng 5x19m đẹp năm 2026
Những bản vẽ thiết kế nhà ống 2 tầng 5x16m tối ưu
Mẫu 1: Bản vẽ nhà ống 2 tầng 5×16 3 phòng ngủ mái lệch
Với bản vẽ thiết kế nhà ống 2 tầng 5x16m lệch tầng sẽ được bố trí đầy đủ công năng từ phòng khách, phòng ngủ, phòng bếp và nhà vệ sinh… giúp đáp ứng đầy đủ nhu cầu sử dụng cho gia đình từ 4 đến 5 thành viên.
Tầng 1: Công năng bao gồm 1 phòng khách; 1 phòng bếp; 1 phòng ngủ và 1 nhà vệ sinh chung cùng với khu giặt phơi của cả gia đình.

Tầng 2: Công năng bao gồm 2 phòng ngủ; 1 nhà vệ sinh chung gần cầu thang; 1 phòng thờ.

Xem thêm:
- 40+ Mẫu thiết kế nhà 2 tầng 3 phòng ngủ 80m2 ấn tượng 2026
Mẫu 2: Bản vẽ thiết kế nhà ống 2 tầng 5x16m 3 phòng ngủ mái bằng
Mẫu nhà ống 2 tầng 5x16m này có cách bố trí công năng tối ưu và thông dụng, giúp đáng ứng được hầu hết công năng sử dụng của đại đai số gia đình Việt hiện nay
Tầng 1: Sở hữu hệ thống hiên trước và tiền sảnh khá rộng, khu vực giếng trời ngay cạnh tiền sảnh giúp đón nhiều ánh sáng tự nhiên; tiếp theo là phòng khách, phòng ăn, 1 phòng ngủ nhỏ, bếp nấu và nhà vệ sinh chung.

Tầng 2: Công năng sẽ bao gồm 2 phòng ngủ; 1 phòng thờ, khu vực sân thượng để trồng rau hoặc phơi đồ và 1 nhà vệ sinh chung ở phía góc cuối nhà để đảm bảo không gian cho các phòng.

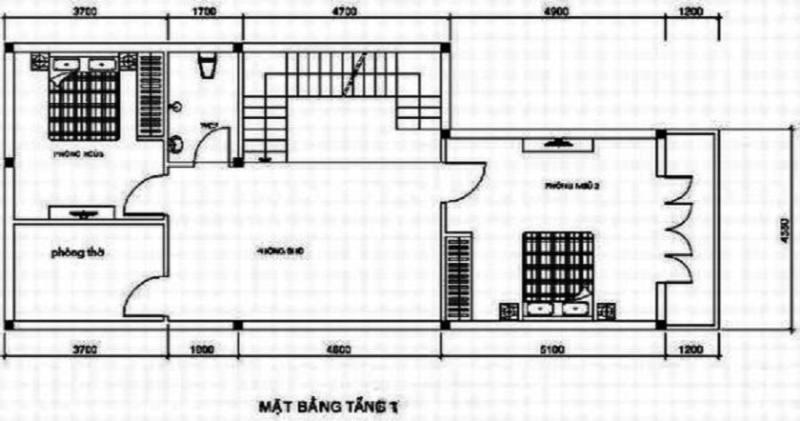
Mẫu 3: Bản vẽ nhà ống 2 tầng 5x16m có gara ô tô
Mẫu bản vẽ thiết kế nhà ống 2 tầng 5x16m này mang đến không gian rộng rãi với gara để xe cực kỳ tiện lợi nhưng vẫn đáp ứng đầy đủ các công năng sử dụng khác như phòng khách, phòng bếp, phòng ngủ, nhà vệ sinh,…
Tầng 1: Bố trí phòng khách tiếp giáp với cầu thang thông tầng; phòng ngủ 1 được thiết kế ở giữa nhà, ngăn cách phòng khách và phòng bếp ăn; nhà vệ sinh chung ngay cạnh phòng bếp.

Tầng 2: Công năng gồm 2 phòng ngủ; 1 phòng thờ; 1 nhà vệ sinh chung được thiết kế ở góc cuối nhà cạnh phòng ngủ 2.

Xem thêm:
- 55+ Mẫu nhà vuông 2 tầng 80m2 đẹp có kèm dự toán chi phí
Những mẫu thiết kế nhà ống 2 tầng 5x16m phổ biến năm 2026
Hasa Home xin được giới thiệu đến quý khách hàng những mẫu thiết kế nhà ống 2 tầng 5x16m đã và đang được nhiều gia chủ lựa chọn nhất hiện nay. Mong rằng với những mẫu nhà ống 2 tầng này sẽ giúp bạn có thêm ý tưởng mới cho căn nhà của mình.
Mẫu nhà ống 2 tầng 5x16m 3 phòng ngủ phong cách hiện đại
Mẫu thiết kế nhà ống 2 tầng 5x16m 3 phòng ngủ phong cách hiện đại mang đến không gian sống tiện nghi nên đang được rất nhiều chủ đầu tư lựa chọn. Mẫu nhà này sẽ phù hợp với những gia đình có từ 2 đến 3 thệ hệ cùng chung sống, giúp đáp ứng đầy đủ công năng sử dụng cho tất cả các thành viên trong gia đình



Xem thêm:
- 15+ Mẫu thiết kế nhà ống 2 tầng 3x20m tối ưu công năng 2026
Mẫu thiết kế nhà ống 2 tầng 5x16m mái Thái
Mẫu nhà ống 2 tầng mái Thái có mặt tiền rộng 5m với chiều sâu lên tới 16m sự là lựa chọn hàng đầu của những gia đình yêu thích nét đẹp pha lẫn giữa hiện đại và truyền thống. Nhà mái Thái giúp căn nhà trở nên khô ráo và thông thoáng hơn, đây cũng là loại mái vô cùng phù hợp với điều kiện thời tiết tại Việt Nam.



Xem thêm:
- 15+ Mẫu thiết kế nhà ống 2 tầng 4.5 x15m đẹp, ấn tượng nhất
Mẫu thiết kế nhà ống 2 tầng 1 tum 5×16
Nếu gia đình bạn có đông thành viên và nhà 2 tầng không đáp ứng đầy đủ nhu cầu sử dụng thì bạn có thể bố trí thêm 1 tầng tum, việc này sẽ tiết kiệm chi phí hơn nhiều so với xây thêm 1 tầng. Mẫu thiết kế nhà ống 2 tầng 5x16m có thêm tầng tum này có thể bố trí từ 3 – 4 phòng ngủ giúp đáp ứng nhu cầu sử dụng của những gia đình từ 4 – 6 thành viên.



Xem thêm:
- 45+ Mẫu thiết kế nhà ống 6x20m đẹp, hiện đại và hợp xu hướng
Hasa Home – Đơn vị chuyên thiết kế nhà ống 2 tầng 5x16m đẹp và tối ưu chi phí
Đối với những mẫu nhà ống 2 tầng 5x16m, Hasa Home luôn áp dụng quy trình làm việc bài bản, kỹ lưỡng để đảm bảo được tính thống nhất từ ý tưởng cho đến hồ sơ kỹ thuật. Gia chủ sẽ được tư vấn tận tình và thấu hiểu về mong muốn sử dụng của mình bởi đội ngũ nhân sự giàu kinh nghiệm. Chúng tôi luôn sát sao và chú trọng về chất lượng thiết kế, tính khả thi trong thi công, giúp gia chủ yên tâm sử dụng lâu dài.

Trên đây là những mẫu thiết kế nhà ống 2 tầng 5x16m đẹp và gây được nhiều ấn tượng năm 2026. Hasa Home hy vọng rằng với những mẫu nhà ống 2 tầng đẹp này sẽ giúp bạn lựa chọn được mẫu nhà ưng ý và phù hợp với kinh tế của gia đình.
Công ty thiết kế kiến trúc Hasa Home
SĐT: 0866 868 926
Website: https://hasahome.com/
Địa chỉ văn phòng: Số 4 Ngõ 123 Trung Kính, Phường Yên Hòa, TP Hà Nội
Nguồn hình ảnh: Sưu tầm


Bài viết liên quan
65+ mẫu nhà 2 tầng 8x10m hiện đại, tiện nghi nhất 2026
40+ Mẫu thiết kế nhà 2 tầng 3 phòng ngủ 80m2 ấn tượng 2026
45+ Mẫu nhà 1 trệt 1 lầu đẹp và ấn tượng nhất hiện nay
45+ Mẫu thiết kế nhà 1 trệt 1 lầu 5x10m đẹp và ấn tượng 2026
30+ Mẫu thiết kế nhà chữ L 2 tầng 60m2 được yêu thích nhất 2026
45+ Ý tưởng xây nhà 1 trệt 1 lầu 500 triệu xu hướng năm 2026