Không chỉ với nhà 2 tầng mà khi xây dựng bất kỳ công trình nhà ở nào thì đều yêu cầu có bản vẽ để đảm bảo tính chính xác và chất lượng công trình. Vậy bản vẽ nhà 2 tầng cần có những thông tin gì, yêu cầu ra sao, tất cả sẽ được Hasa Home giải đáp chi tiết ngay dưới đây.
Bản vẽ nhà 2 tầng là gì?
Bản vẽ nhà 2 tầng hay bản vẽ nhà được hiểu đơn giản là một thuật ngữ chuyên ngành được sử dụng trong ngành xây dựng hiện nay. Bản vẽ sẽ được sử dụng để phác thảo lại các thông tin cần có trong công trình xây dựng của bạn, ở đây cụ thể là các công trình nhà ở.
Các thông tin có trên bản vẽ sẽ được thể hiện bằng các ký hiệu chuyên ngành riêng nhưng khá đơn giản và dễ hiểu, giúp cho cả những người không có kinh nghiệm có thể theo dõi được các thông tin từ bản vẽ. Vì vậy các chủ đầu tư không nên bỏ qua bước đọc bản vẽ nhà trước khi tiến hành xây dựng.

Bản vẽ nhà 2 tầng không chỉ đơn giản là bản vẽ giúp cho gia chủ nắm được trọn vẹn công trình của mình mà còn được sử dụng như một bản hợp đồng cam kết, nhằm hạn chế tối đa các sai sót của chủ thầu trong quá trình xây dựng nhà ở của mình.
Tại sao lại cần có bản vẽ nhà 2 tầng?
Trong quá trình thi công nhà ở, các bản vẽ nhà luôn đóng một vai trò vô cùng quan trọng, cụ thể sẽ được Hasa Home thể hiện qua các yếu tố sau:
Bản vẽ nhà giúp tiết kiệm chi phí xây dựng
Nhà 2 tầng là mẫu nhà thuộc dạng công trình có khối lượng lớn nên chủ đầu tư cũng cần phải tính toán thật kỹ để có thể tiết kiệm tối đa chi phí xây dựng. Các công trình cũng cần phải đảm bảo đều có bản vẽ nhà 2 tầng cụ thể, việc này sẽ giúp hạn chế tối đa các sai sót có thể xảy ra.

Khi lên bản vẽ hoàn thiện, đội ngũ kiến trúc sư, kỹ sư sẽ đưa ra được những phương án phù hợp nhất cho công trình của bạn. Bên cạnh đó sau khi xem xong bản vẽ nhà, chủ đầu tư nếu có nhu cầu thay đổi, sửa chữa lại hạng mục nào cũng sẽ dễ dàng hơn.
Bản vẽ nhà 2 tầng giúp ước tính khối lượng vật tư sử dụng
Việc sở hữu bản vẽ nhà có 2 tầng trước khi thi công cũng sẽ giúp chủ đầu tư có thể ước tính được chính xác khối lượng vật tư mà công trình của mình cần sử dụng. Việc này sẽ giúp hạn chế tối đa tình trạng thừa hay thiếu vật tư trong quá trình thi công nhà.

Ngoài ra, nếu bạn không muốn gián đoạn quá trình thi công thì bạn có thể mua lượng vật tư nhiều hơn so với dự tính một chút để đề phòng những trường hợp phát sinh. Từ đó cũng có thể chủ động hơn và tiết kiệm tối đa chi phí, thời gian cho việc bổ sung thêm nguyên vật liệu ngoài dự kiến.
Tính thẩm mỹ cho các mẫu nhà 2 tầng được đảm bảo
Thông qua các bản vẽ nhà 2 tầng, chủ đầu tư cũng có thể nắm được tổng thể căn nhà của gia đình mình. Từ đó có thể đưa ra các mong muốn cá nhân để các kiến trúc sư có thể thay đổi sao cho phù hợp nhất với nhu cầu sử dụng. Theo đó cũng sẽ hạn chế được tối đa việc bất đồng quan điểm trong việc đưa ra các ý tưởng thiết kế nhà. Khi cả 2 bên đã đồng nhất quan điểm về mẫu thiết kế nhà thì công việc xây dựng cũng sẽ được diễn ra thuận lợi và nhanh chóng hơn.

Bản vẽ thiết kế nhà 2 tầng giúp tối ưu thời gian thi công
Khi đã có bản vẽ nhà phù hợp nhất, các công trình nhà ở cũng sẽ được xây dựng nhanh chóng hơn, thuận tiện hơn, từ đó hạn chế tối đa các vấn đề phát sinh làm ảnh hưởng đến tiến độ thi công. Điều này cũng sẽ giúp đẩy nhanh tiến độ bàn giao nhà mà vẫn đảm bảo tuyệt đối về chất lượng.

Những mẫu bản vẽ nhà 2 tầng đang được ưa chuộng 2026
Dưới đây là một số mẫu bản vẽ nhà 2 tầng tối ưu công năng đang được nhiều người tìm kiếm nhất trong thời gian vừa qua. Hy vọng bạn cũng sẽ tìm được cho mình một vài gợi ý hữu ích nhất.
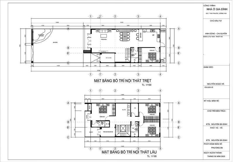
Bản vẽ nhà 2 tầng mái Nhật tinh tế
Nhà 2 tầng mái Nhật là một trong những thiết kế không còn quá xa lạ với nhiều gia đình Việt hiện nay. Với ưu điểm của các mẫu nhà mái Nhật là tính thẩm mỹ cao, phù hợp với khí hậu tại Việt Nam, đây chắc chắn sẽ là lựa chọn tối ưu nhất dành cho gia đình bạn.
Bạn có thể kết hợp thêm không gian mở để căn nhà trở nên thông thoáng và tinh tế hơn. Chi tiết bản vẽ nhà 2 tầng mái Nhật được thể hiện như sau:

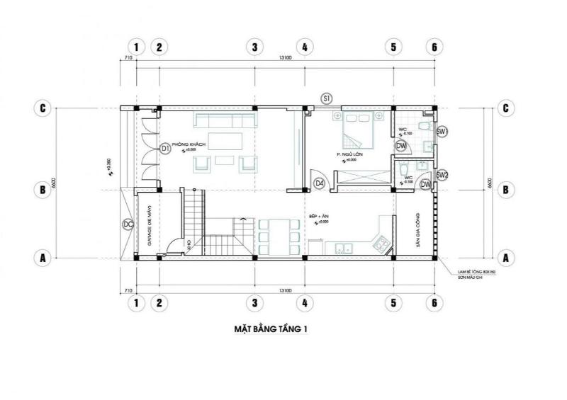
Bản vẽ nhà 2 tầng mái Thái độc đáo
Nhà mái Thái 2 tầng cũng là một trong những kiến trúc độc đáo mà gia chủ không thể bỏ qua trong thời gian gần đây. Mẫu nhà này đang dần “lên ngôi” nhờ thiết kế vô cùng sang trọng, đẳng cấp và có thể đáp ứng mọi nhu cầu của các gia đình hiện nay.
Để giúp bạn hình dung rõ ràng hơn về mẫu nhà này, dưới đây là bản vẽ nhà 2 tầng mái Thái mà bạn có thể tham khảo:

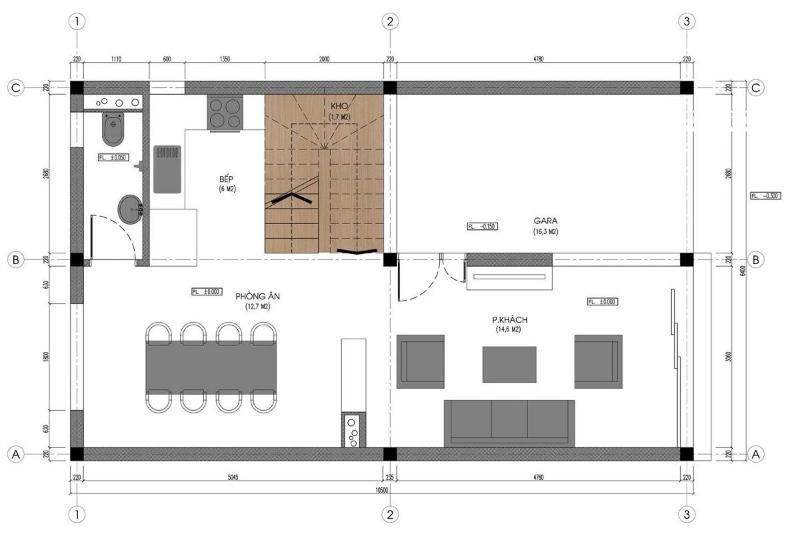
Bản vẽ nhà 2 tầng mặt tiền 7m tiện nghi
Mẫu nhà 2 tầng mặt tiền 7m là một trong những thiết kế được nhiều gia đình yêu thích bởi nét đẹp hiện đại và công năng tối ưu. Với điểm nhấn là phần mặt tiền rộng 7m giúp mang lại không gian sống vô cùng rộng rãi và thông thoáng.
Kiến trúc hiện đại, sang trọng với thiết kế hình khối vững chãi, khỏe khoắn sẽ là sự lựa chọn của không ít gia đình hiện nay. Nếu bạn cũng đang muốn tham khảo mẫu nhà này thì có thể xem bản vẽ chi tiết bên dưới đây của Hasa Home.

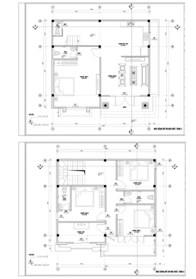
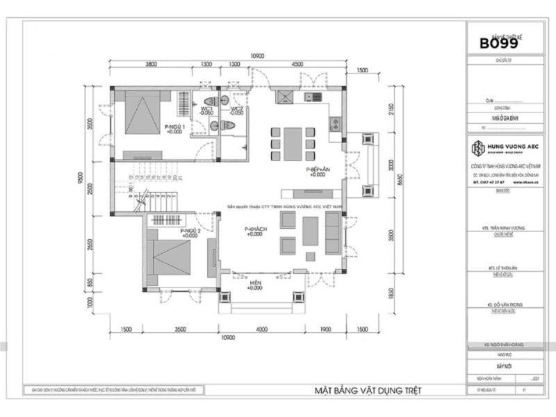
Bản vẽ nhà 2 tầng 3 phòng ngủ thoáng đãng
Thiết kế nhà 2 tầng có 3 phòng ngủ cũng là lựa chọn của không ít gia đình ở nước ta. Mẫu nhà 2 tầng này có thể đáp ứng tối đa các nhu cầu sử dụng cơ bản nhất của các thành viên trong gia đình. Không gian 3 phòng ngủ sẽ được sắp xếp ở cả tầng 1 và tầng 2 giúp tận dụng tối đa diện tích sử dụng. Dưới đây là bản vẽ nhà 2 tầng 3 phòng ngủ cực kỳ chi tiết mà bạn có thể tham khảo.

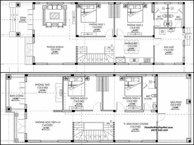
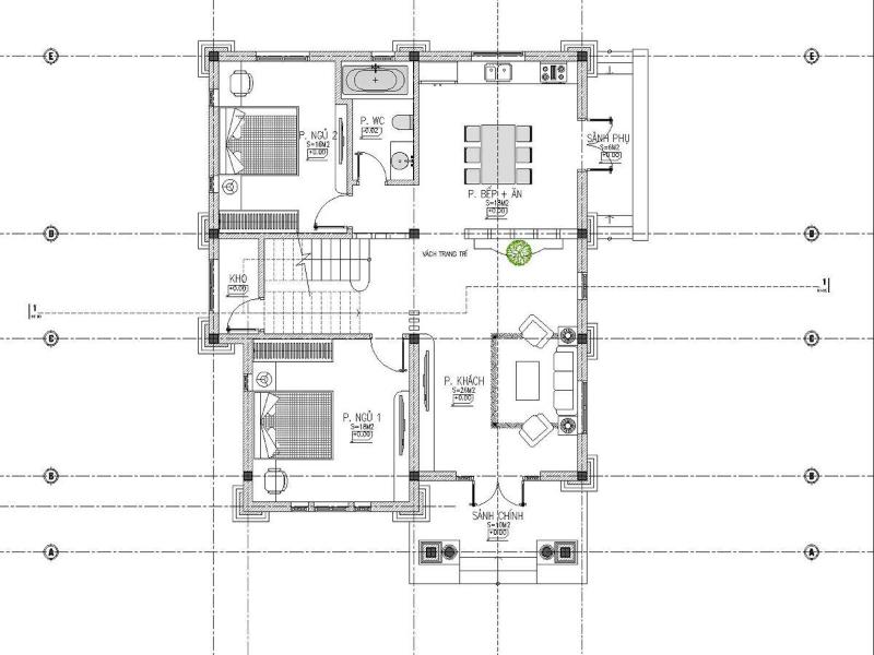
Bản vẽ nhà 2 tầng 4 phòng ngủ hiện đại
Nếu như gia đình bạn có đông thành viên thì mẫu nhà 2 tầng có 4 phòng ngủ sẽ là sự lựa chọn phù hợp nhất. Thiết kế này không chỉ giúp tiết kiệm chi phí mà còn mang đến sự thoải mái và thuận tiện cho mọi thành viên trong gia đình bạn. Cùng tham khảo mẫu bản vẽ nhà 2 tầng 4 phòng ngủ tối ưu công năng ngay dưới đây nhé!

Nguyên tắc cơ bản khi thiết kế bản vẽ nhà 2 tầng
Để có những bản vẽ nhà 2 tầng phù hợp và tối ưu nhất cho căn nhà của mình, chủ đầu tư cũng cần phải nắm được một vài nguyên tắc dưới đây:
Xác định các khu vực chức năng
Việc xác định các khu vực chức năng cho căn nhà của bạn là yếu tố quan trọng nhất mà bạn không thể bỏ qua khi lên bản vẽ cho căn nhà của mình. Tuy nhiên, việc để gia chủ tự lên ý tưởng bố trí công năng là hết sức khó khăn . Chính vì vậy bạn cần phải tham khảo ý kiến của các kiến trúc sư có chuyên môn để đưa ra phương án phù hợp nhất.
Việc bố trí công năng phù hợp sẽ đảm bảo cho không gian sống của bạn trở nên thoải mái và tiện nghi hơn rất nhiều. Vì vậy khi lên bất cứ bản vẽ nhà 2 tầng nào, chủ đầu tư cũng cần phải chú ý lên ý tưởng phân chia công năng đầu tiên.

Lựa chọn hình khối thiết kế cho căn nhà khi lên bản vẽ nhà 2 tầng
Để thực hiện các bản vẽ nhà 2 tầng chính xác nhất, chủ đầu tư cũng cần phải lên trước các ý tưởng kiến trúc cho căn nhà của mình. Tùy theo hiện trạng của căn nhà mà bạn có thể lựa chọn một mẫu kiến trúc phù hợp nhất.
- Đối với những căn nhà có diện tích xây dựng hạn chế, mặt tiền nhỏ thì tốt nhất là bạn nên lựa chọn các mẫu thiết kế nhà dạng ống, có chiều sâu để giúp tối ưu không gian sử dụng và đáp ứng mọi nhu cầu sinh hoạt của các thành viên trong gia đình.
- Đối với những căn nhà có diện tích đất rộng, mặt tiền lớn thì bạn có thể lựa chọn các mẫu nhà vuông, nhà giả biệt thự và kết hợp sân vườn, gara để xe vô cùng thuận tiện.
Sau khi đã xác định được hình khối cho ngôi nhà thì bạn mới có thể thực hiện việc phân chia công năng sử dụng một cách phù hợp và tối ưu nhất.

Xác định rõ diện tích đất sử dụng để xây dựng nhà
Trước khi tiến hành lên ý tưởng cho các bản vẽ nhà 2 tầng, chủ đầu tư cũng cần phải cung cấp diện tích đất chính xác mà bạn sẽ sử dụng cho việc xây dựng nhà. Khi đã xác định được diện tích xây dựng chính xác thì các đơn vị thiết kế cũng sẽ dễ dàng tính được chi phí cũng như số lượng vật tư cho công trình nhà bạn.
Bên cạnh đó khi xác định được diện tích xây dựng, các kiến trúc sư cũng sẽ dễ dàng hơn trong việc bố trí công năng trong căn nhà của bạn. Tùy theo nhu cầu sử dụng thì có thể cân nhắc để thiết kế không gian phòng khách rộng hơn hoặc nhỏ hơn để phù hợp nhất.

Lựa chọn phong cách thiết kế phù hợp
Các gia chủ cũng không nên bỏ qua bước lên ý tưởng về phong cách thiết kế cho căn nhà của mình. Các mẫu nhà 2 tầng hiện nay có thể phù hợp với rất nhiều phong cách thiết kế khác nhau từ đơn giản, hiện đại đến sang trọng, cổ điển,…
Tùy theo sở thích cũng như mong muốn của gia đình mà bạn có thể cân nhắc lựa chọn phong cách thiết kế phù hợp nhất. Khi chủ đầu tư đã xác định được phong cách thiết kế cho căn nhà của mình, các kiến trúc sư cũng sẽ dễ dàng hơn trong việc lên bản vẽ 3D cho căn nhà.

Đảm bảo hài hòa với các không gian xung quanh
Một lưu ý tiếp theo mà bản vẽ nhà 2 tầng cũng cần phải thể hiện được đó là chính sự hài hòa của căn nhà với không gian xung quanh. Theo đó các kiến trúc sư sẽ cần phải đưa ra những ý tưởng thiết kế để sao cho tổng thể của căn nhà không bị mất cân đối với không gian xung quanh. Hãy đảm bảo các yếu tố trong căn nhà của bạn luôn hài hòa với cảnh vật xung quanh, giúp cho các thành viên trong gia đình luôn cảm thấy nhẹ nhàng và thoải mái nhất có thể.

Đảm bảo sự thông thoáng
Khi lên ý tưởng cho bản vẽ nhà 2 tầng, gia chủ cũng như kiến trúc sư cũng cần phải đảm bảo phân chia các khu vực chức năng sao cho căn nhà luôn được thông thoáng và rộng rãi nhất có thể. Bạn có thể cân nhắc các vị trí như sân trước, sân sau hoặc giếng trời để giúp căn nhà trở nên thoáng mát và đón nhiều ánh sáng tự nhiên hơn.

Những lưu ý khi xem bản vẽ nhà 2 tầng
Sau khi đã nắm được các nguyên tắc thiết kế bản vẽ nhà cơ bản nhất ở trên, các gia chủ cũng cần phải nắm được những lưu ý khi xem bản vẽ nhà dưới đây để đảm bảo có 1 bản vẽ nhà chính xác và hiệu quả nhất.
- Cần phải quan sát bản vẽ tổng thể của cả tầng 1 và tầng 2 để nắm được khái quát về không gian của cả căn nhà xem đã đầy đủ công năng mà các gia đình bạn mong muốn hay chưa.
- Nếu trong quá trình xem bản vẽ thấy có bất cứ vấn đề nào còn chưa rõ ràng hoặc chưa ưng ý thì cần phải báo lại ngay với kiến trúc sư để tiến hành chỉnh sửa theo ý muốn.
- Nắm rõ thời gian thi công và chi phí thi công theo bản vẽ nhà để đảm bảo không có các vấn đề phát sinh ngoài ý muốn.

Hasa Home – Đơn vị chuyên cung cấp bản vẽ nhà 2 tầng chi tiết hiện nay
Hasa Home đã có hơn 5 năm kinh nghiệm trong thiết kế kiến trúc và triển khai bản vẽ nhà ở nói chung và bản vẽ nhà 2 tầng nói riêng. Chúng tôi được nhiều gia chủ yêu mến nhờ quy trình làm việc rõ ràng và minh bạch. Hasa Home triển khai từng bước từ khảo sát, lên phương án mặt bằng cho đến hồ sơ kỹ thuật chi tiết nhằm mục đích đảm bảo chất lượng và dễ thi công. Đội ngũ kiến trúc sư tận tâm luôn mang tới cho từng gia chủ sản phẩm sát với nhu cầu thực tế nhất.

Trên đây là tổng hợp các mẫu bản vẽ nhà 2 tầng đang được nhiều người quan tâm nhất trong thời gian vừa qua. Hy vọng với những chia sẻ từ Hasa Home sẽ giúp cho bạn lựa chọn được mẫu bản vẽ yêu thích nhất của mình.
Công ty thiết kế kiến trúc Hasa Home
SĐT: 0866 868 926
Website: https://hasahome.com/
Địa chỉ văn phòng: Số 4 Ngõ 123 Trung Kính, Phường Yên Hòa, TP Hà Nội
Nguồn hình ảnh: Sưu tầm


Bài viết liên quan
65+ mẫu nhà 2 tầng 8x10m hiện đại, tiện nghi nhất 2026
40+ Mẫu thiết kế nhà 2 tầng 3 phòng ngủ 80m2 ấn tượng 2026
45+ Mẫu nhà 1 trệt 1 lầu đẹp và ấn tượng nhất hiện nay
45+ Mẫu thiết kế nhà 1 trệt 1 lầu 5x10m đẹp và ấn tượng 2026
30+ Mẫu thiết kế nhà chữ L 2 tầng 60m2 được yêu thích nhất 2026
45+ Ý tưởng xây nhà 1 trệt 1 lầu 500 triệu xu hướng năm 2026