Mẫu thiết kế nhà chữ L 2 tầng 60m2 là lựa chọn tối ưu dành cho các gia đình ở khu vực ngoại ô, nông thôn hiện nay nhờ sở hữu tính thẩm mỹ cao cùng khả năng tiết kiệm tối đa chi phí. Nếu bạn cũng đang quan tâm đến mẫu nhà chữ L này thì có thể tham khảo ngay các nội dung bên dưới đây của Hasa Home nhé!
Có nên thiết kế nhà chữ L 2 tầng 60m2 hay không?
Nhà chữ L 2 tầng 60m2 là thiết kế đang rất phổ biến trên thị trường hiện nay. Tuy nhiên mẫu nhà chữ L này lại nhận được rất nhiều ý kiến trái chiều về việc có nên thi công hay không. Nếu bạn vẫn còn đang băn khoăn về mẫu thiết kế nhà chữ L 2 tầng 60m2 thì có thể tham khảo ngay các ưu nhược điểm bên dưới đây.
Ưu điểm của nhà chữ L 2 tầng 60m2
- Phù hợp với nhiều địa hình khác nhau: Nhà 2 tầng chữ L 60m2 được đánh giá cao khi có thể phù hợp với nhiều dạng địa hình và diện tích khu đất khác nhau, đồng thời vẫn đảm bảo sự thuận tiện trong bố trí công năng sử dụng. Nếu như lô đất của bạn không được vuông vắn, bằng phẳng cho lắm thì mẫu nhà chữ L 2 tầng 60m2 sẽ là lựa chọn hàng đầu dành cho bạn.
- Phù hợp với nhiều phong cách thiết kế: Mẫu thiết kế nhà chữ L 2 tầng 60m2 đảm bảo có thể phù hợp với nhiều phong cách thiết kế khác nhau, đáp ứng mọi sở thích của các gia chủ hiện nay. Bạn có thể cân nhắc lựa chọn một trong các phong cách thiết kế như hiện đại, tân cổ điển, cổ điển, Châu Âu, truyền thống,…

- Tiết kiệm diện tích: Mẫu nhà 2 tầng chữ L 60m2 cũng đảm bảo có thể tiết kiệm tối đa diện tích đất sử dụng cho các gia đình. Theo đó các gia chủ không cần phải sở hữu mảnh đất quá lớn vẫn có thể thiết kế được ngôi nhà đúng như mong muốn của mình.
- Dễ dàng phân bố các phòng chức năng: Mẫu thiết kế nhà chữ L 2 tầng 60m2 giúp gia chủ có thể phân bổ các không gian chức năng trong căn nhà của mình một cách hiệu quả nhất. Vì vậy mẫu nhà 2 tầng chữ L này cũng được đánh giá là mẫu nhà lý tưởng dành cho các gia đình đông thành viên, cần nhiều không gian sử dụng.

- Có sự thống nhất giữa các không gian: Đặc điểm của thiết kế nhà chữ L 2 tầng 60m2 là các không gian sử dụng đều sẽ được liên thông với nhau, tạo nên sự hài hòa cho toàn bộ công trình. Tuy nhiên thiết kế này vẫn đảm bảo được sự riêng tư cho từng thành viên trong gia đình.
- Luôn có khoảng sân trống cho căn nhà: Đặc điểm của nhà 2 tầng chữ L là luôn có một khoảng sân trống ở phần góc của ngôi nhà. Vì vậy các chủ đầu tư có thể tận dụng không gian này để phục vụ đa dạng nhu cầu sử dụng khác nhau như làm gara để xe ô tô, sân chơi cho trẻ em, sân vườn thư giãn,…
Nhược điểm của nhà chữ L 2 tầng 60m2
Bên cạnh những ưu điểm nổi bật ở trên thì mẫu thiết kế nhà chữ L 2 tầng 60m2 vẫn sẽ có một số hạn chế nhỏ như:
- Mẫu nhà 2 tầng chữ L có đặc điểm là chiều ngang tương đối hẹp, không gian nhà bị gấp khúc. Do vậy có thể hạn chế việc tiếp nhận ánh sáng tự nhiên, khiến cho không gian căn nhà có bí bách, ẩm thấp nếu không được bố trí hợp lý.
- Bên cạnh đó nhà chữ L cũng mang đến quan niệm không tốt về phong thủy. Theo phong thủy thì mẫu nhà thiết kế nhà chữ L 2 tầng 60m2 thường thiếu đi sự cân đối nên gia chủ cần tham khảo ý kiến từ các chuyên gia để đưa ra các phương án thi công phù hợp nhất.

Bản vẽ thiết kế công năng nhà chữ L 2 tầng 60m2
Trước khi tìm hiểu về các mẫu thiết kế nhà chữ L 2 tầng 60m2 đẹp, hiện đại thì bạn cũng cần phải nắm được bản vẽ công năng chi tiết để dễ dàng hình dung bố cục tổng thể cũng như cách bố trí bên trong căn nhà. Dưới đây là bản vẽ nhà chữ L 2 tầng 60m2 mà bạn có thể tham khảo.
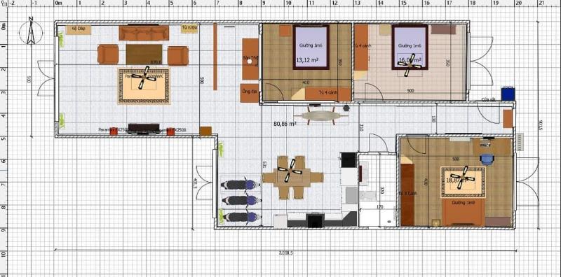
Bản vẽ thiết kế tầng 1 nhà chữ L 2 tầng 60m2
Tầng 1 của nhà chữ L 2 tầng 60m2 cũng tương tự như với các thiết kế nhà ở khác, gia chủ có thể bố trí các không gian như phòng khách, phòng bếp, phòng vệ sinh chung,…Các không gian sẽ được liên thông với nhau để đảm bảo có thể tối ưu diện tích sử dụng.

Bản vẽ thiết kế tầng 2 nhà chữ L 2 tầng 60m2
Tầng 2 của mẫu thiết kế nhà chữ L 2 tầng 60m2 sẽ được sử dụng cho các không gian phòng ngủ. Tuy nhiên, gia chủ cần lưu ý là không nên đặt phòng ngủ ở các vị trí lưỡi dao của căn nhà. Bên cạnh đó bạn cũng có thể bố trí nhà vệ sinh ở góc nhà để đáp ứng nhu cầu sử dụng của cả gia đình.

Những mẫu thiết kế nhà chữ L 2 tầng 60m2 được yêu thích nhất 2026
Mẫu thiết kế nhà chữ L 2 tầng 60m2 mái Thái
Mẫu thiết kế nhà chữ L 2 tầng 60m2 mái Thái là một trong những thiết kế được rất nhiều gia đình yêu thích hiện nay bởi nó không chỉ mang đến một vẻ đẹp truyền thống, sang trọng mà còn cực kỳ phù hợp với điều kiện thời tiết ở nước ta hiện nay. Mẫu nhà chữ L 2 tầng 60m2 này có thể kết hợp với đa dạng phong cách khác nhau như cổ điển hay hiện đại đều rất phù hợp.



Xem thêm:
- 15+ Mẫu thiết kế nhà ống 2 tầng 3x20m tối ưu công năng 2026
Mẫu thiết kế nhà chữ L 2 tầng 60m2 mái bằng
Mẫu thiết kế nhà chữ L 2 tầng 60m2 mái bằng là thiết kế mang hơi hướng hiện đại nên được khá nhiều gia đình lựa chọn hiện nay, đặc biệt là với các căn nhà ở thành phố. Mẫu nhà 2 tầng chữ L mái bằng này đảm bảo có thể phù hợp với nhu cầu của đại đa số gia đình ở nước ta. Bên cạnh đó, bạn có thể tận dụng khu vực tầng thượng với nhiều mục đích sử dụng khác nhau như làm sân phơi, vườn rau hoặc có thể dễ dàng nâng thêm tầng khi có nhu cầu.



Xem thêm:
- 15+ Mẫu thiết kế nhà ống 2 tầng 4.5 x15m đẹp, ấn tượng nhất
Mẫu thiết kế nhà chữ L 2 tầng 60m2 phong cách tân cổ điển
Nếu bạn là người yêu thích các phong cách kiến trúc cổ điển kiểu Châu Âu thì chắc chắn bạn sẽ không thể bỏ qua các mẫu nhà chữ L 2 tầng 60m2 phong cách tân cổ điển. Mẫu nhà chữ L 2 tầng tân cổ điền này được đánh giá khá cao về tính thẩm mỹ với các chi tiết trang trí được thiết kế tinh tế, chạm khắc tỉ mỉ và hài hòa trong tổng thể công trình.



Xem thêm:
- 40+ Mẫu thiết kế nhà 2 tầng 50m2 3 phòng ngủ ấn tượng 2026
Mẫu thiết kế nhà chữ L 2 tầng 60m2 phong cách hiện đại
Mẫu thiết kế nhà chữ L 2 tầng 60m2 theo phong cách hiện đại luôn là lựa chọn được các gia đình ưa chuộng nhất trên thị trường hiện nay. Phong cách hiện đại cũng giúp gia chủ dễ dàng bắt kịp các xu hướng kiến trúc mới hiện nay, đồng thời mang lại không gian sống tiện nghi và phù hợp với nhu cầu sử dụng. Ngoài ra, các thiết kế nhà ở này không chỉ có vẻ đẹp mới mẻ, trẻ trung mà còn giúp các gia đình tiết kiệm được tối đa các khoản chi phí.



Xem thêm:
- 15+ Mẫu thiết kế nhà 5x10m 2 tầng 3 phòng ngủ đẹp nhất 2026
Một số kinh nghiệm thiết kế thi công nhà chữ L 2 tầng 60m2
Bên cạnh việc tham khảo các mẫu thiết kế nhà chữ L 2 tầng 60m2, các gia chủ cũng cần phải nắm được một vài lưu ý trong quá trình thi công dưới đây để đảm bảo công trình được xây dựng đúng kỹ thuật và có tuổi thọ sử dụng lâu dài.
Đảm bảo các yếu tố phong thủy
Như Hasa Home đã đề cập ở trên thì mẫu nhà chữ L 2 tầng 60m2 thường mang các ý nghĩa phong thủy không tốt, đặc biệt là ở phần lưỡi dao. Vì vậy các gia chủ cần phải chú ý đến cách sắp xếp các không gian sao cho không làm ảnh hưởng đến tài lộc và sức khỏe của cả gia đình.
- Không nên đặt phòng ngủ ở các vị trí lưỡi dao của căn nhà, đặc biệt là phòng của trẻ con hay người lớn tuổi. Tránh làm ảnh hưởng đến sức khỏe của các thành viên.
- Không nên đặt bếp ở các vị trí lưỡi dao bởi nó có thể ảnh hưởng đến sự hòa thuận của vợ chồng trong gia đình.

Bố trí hệ thống cửa phù hợp
Không gian nhà chữ L thường sẽ gặp phải tình trạng không được thoáng khí, bí bách vì vậy cần bố trí hệ thống cửa sổ và cửa ra vào hợp lý để tăng khả năng đón gió và lưu thông không khí tốt hơn. Do đó, từ phòng khách, phòng ngủ cho đến nhà vệ sinh đều cần phải bố trí cửa sổ để giúp thu hút ánh sáng cũng như đón không khí từ bên ngoài.

Các khu vực cửa sổ cũng cần được bố trí sao cho phù hợp với cửa chính, giúp luồng không khí được lưu thông tốt nhất. Nếu mẫu thiết kế nhà chữ L 2 tầng 60m2 bị hạn chế các ô cửa sổ thì gia chủ nên tận dụng thêm giếng trời, giúp không khí được lưu thông từ bên trên xuống. Từ đó sẽ giúp căn nhà có đầy đủ ánh sáng và không khí để lưu thông, hạn chế tình trạng ẩm mốc, bí bách.
Nắm được bản vẽ chi tiết
Trước khi thi công xây dựng nhà chữ L 2 tầng 60m2, các gia chủ cũng cần phải nắm được bản vẽ thiết kế chi tiết của căn nhà. Từ đó gia chủ mới có cái nhìn tổng quan nhất về căn nhà, phát hiện kịp thời các yếu tố chưa thực sự phù hợp để có thể yêu cầu sửa chữa các chi tiết chưa đạt yêu cầu, tránh những phát sinh không đáng có trong quá trình thi công.

Theo dõi tiến độ thi công
Mặc dù đã nắm được các bản vẽ chi tiết của căn nhà này nhưng các gia chủ vẫn cần phải bám sát tiến độ thi công của căn nhà, hạn chế tối đa các sai sót trong quá trình thi công. Các gia chủ phải là người chủ động nắm được tiến độ thi công có đúng như dự kiến ban đầu hay không để đốc thúc nhà thầu hoàn thành đúng tiến độ.

Lựa chọn đơn vị thi công
Đơn vị thi công cũng là yếu tố vô cùng quan trọng mà các gia chủ cần nắm được trong quá trình thi công nhà ở nói chung và nhà chữ L 2 tầng 60m2 nói riêng. Một đơn vị thi công uy tín và có nhiều kinh nghiệm không chỉ giúp các gia chủ có thể lựa chọn được một phương án thiết kế phù hợp mà giúp tối ưu các chi phí trong quá trình thi công, hạn chế tình trạng phát sinh chi phí không đáng có.

Thi công nhà chữ L 2 tầng 60m2 hết bao nhiêu?
Chi phí thi công của các mẫu thiết kế nhà chữ L 2 tầng 60m2 trên thị trường hiện nay hoàn toàn không có mức giá cụ thể. Theo đó chi phí sẽ còn phải phụ thuộc vào nhiều yếu tố khác nhau như phong cách thiết kế kiến trúc, địa hình thi công, thời gian thi công, nguyên vật liệu sử dụng,… Để nắm được mức giá cụ thể, bạn có thể liên hệ trực tiếp với các đơn vị thi công có uy tín để được báo giá chính xác và cụ thể nhất.

Trên đây là toàn bộ thông tin về các mẫu thiết kế nhà chữ L 2 tầng 60m2 đang được yêu thích nhất trên thị trường hiện nay. Hy vọng với các thông tin mà Hasa Home cung cấp sẽ giúp cho bạn lựa chọn được các thiết kế tối ưu mà vẫn đảm bảo tính thẩm mỹ cao.
Công ty thiết kế kiến trúc Hasa Home
SĐT: 0866 868 926
Website: https://hasahome.com/
Địa chỉ văn phòng: Số 4 Ngõ 123 Trung Kính, Phường Yên Hòa, TP Hà Nội
Nguồn hình ảnh: Sưu tầm


Bài viết liên quan
65+ mẫu nhà 2 tầng 8x10m hiện đại, tiện nghi nhất 2026
40+ Mẫu thiết kế nhà 2 tầng 3 phòng ngủ 80m2 ấn tượng 2026
45+ Mẫu nhà 1 trệt 1 lầu đẹp và ấn tượng nhất hiện nay
45+ Mẫu thiết kế nhà 1 trệt 1 lầu 5x10m đẹp và ấn tượng 2026
45+ Ý tưởng xây nhà 1 trệt 1 lầu 500 triệu xu hướng năm 2026
25+ Mẫu thiết kế nhà 2 tầng 100m2 đẹp được yêu thích 2026