Bạn đang tìm kiếm mẫu nhà cấp 4 4 phòng ngủ 400 triệu mà vẫn đảm bảo không gian tiện nghi, công năng sử dụng phù hợp. Bài viết dưới đây của Hasa Home sẽ tổng hợp hơn 39 mẫu thiết kế được chọn lọc, phù hợp với nhiều diện tích mặt bằng và phong cách khác nhau, mang đến cho bạn những lựa chọn ứng ý. Tham khảo ngay nhé!
Tại sao nên xây nhà cấp 4 4 phòng ngủ 400 triệu?
Trong bối cảnh chi phí xây dựng ngày càng tăng, việc lựa chọn một mẫu nhà vừa đảm bảo công năng sử dụng, vừa phù hợp ngân sách là vấn đề đang được nhiều gia chủ quan tâm. mẫu nhà cấp 4 4 phòng ngủ 400 triệu đang là giải pháp được nhiều gia đình lựa chọn nhờ những ưu điểm sau
- Phù hợp với ngân sách của nhiều phân khúc gia đình
- Đáp ứng tốt nhu cầu sinh hoạt của gia đình đông thành viên
- Thiết kế đơn giản, thi công dễ dàng và nhanh chóng
- Tiết kiệm chi phí xây dựng và bảo trì
- Công năng bố trí linh hoạt, thuận tiện trong cải tạo và nâng cấp sau này
- Kết nối các thành viên trong gia đình, đảm bảo tiện nghi trong sinh hoạt hàng ngày

Mẫu nhà cấp 4 4 phòng ngủ 400 triệu đẹp được ưa chuộng 2026
Dưới đây là những mẫu nhà cấp 4 4 phòng ngủ 400 triệu đẹp được nhiều gia đình lựa chọn nhờ thiết kế đẹp, tối ưu công năng và phù hợp với nhu cầu sử dụng thực tế. Hasa Home đã tổng hợp và chia sẻ tới bạn
Mẫu nhà cấp 4 4 phòng ngủ 400 triệu mái Thái
Mẫu nhà cấp 4 4 phòng ngủ 400 triệu mái Thái được nhiều gia đình lựa chọn nhờ sự kết hợp hài hòa giữa thẩm mỹ và công năng sử dụng. Thiết kế mái Thái với độ dốc cao giúp ngôi nhà thoát nước tốt, hạn chế tình trạng thấm dột và đồng thời tạo cảm giác cao ráo, thoáng mát cho không gian sống. Mẫu nhà này thường được bố trí 4 phòng ngủ, 1 phòng khách đi cùng với đó là khu vực phòng bếp, phòng ăn và nhà vệ sinh chung. Cách sắp xếp không gian khoa học giúp tối ưu diện tích sử dụng, mà vẫn tạo được sự riêng tư cho các thành viên.



Xem thêm:
- Tổng hợp 25+ mẫu nhà cấp 4 giá 350 triệu ở nông thôn
Mẫu nhà cấp 4 4 phòng ngủ 400 triệu mái Nhật
Mẫu nhà cấp 4 4 phòng ngủ 400 triệu mái Nhật đang trở thành xu hướng được nhiều gia đình lựa chọn nhờ thiết kế hài hòa, tinh tế và phù hợp với nhiều diện tích đất khác nhau. Kiến trúc mái Nhật có độ dốc nhẹ, kết cấu cân đối giúp tổng thể ngôi nhà trở nên thanh thoát, hiện đại nhưng vẫn giữ được nét gần gũi. Hơn thế nữa, hệ mái Nhật cũng có khả năng thoát nước tốt, hạn chế động nước, bảo vệ ngôi nhà.



Xem thêm:
- 50+ Mẫu nhà mái Nhật 1 tầng 4 phòng ngủ ấn tượng năm 2026
Mẫu nhà cấp 4 4 phòng ngủ 400 triệu mái bằng
Mẫu nhà cấp 4 4 phòng ngủ 400 triệu mái bằng là lựa chọn phù hợp với những gia đình yêu thích phong cách hiện đại, tối giản và tối ưu chi phí xây dựng. Thiết kế mái bằng với kết cấu đơn giản giúp quá trình thi công nhanh chóng, giảm nhiều chi phí. Ngoài ra, mẫu nhà này còn mang đến vẻ đẹp kiến trúc gọn gàng, trẻ trung và dễ dàng kết hợp với nhiều phong cách thiết kế khác nhau. Phần mái bằng còn có thể được tận dụng để làm sân phơi, khu trồng cây hoặc không gian thư giãn ngoài trời cho cả gia đình.



Xem thêm:
- 65+ Mẫu nhà cấp 4 giá 500 triệu đẹp, đầy đủ tiện nghi
Mẫu nhà cấp 4 4 phòng ngủ 400 triệu hình chữ L
Mẫu nhà cấp 4 4 phòng ngủ 400 triệu hình chữ L được nhiều gia đình lựa chọn nhờ ưu điểm tận dụng diện tích đất hiệu quả và tạo không gian sống thoáng đãng. Thiết kế chữ L giúp tạo nên một khoảng sân trước hoặc bên hông nhà, vừa tăng thẩm mỹ vừa mang lại sự thông thoáng cho toàn bộ công trình. Phòng khách thường được bố trí ở trung tâm, kết nối với khu bếp và phòng ăn, 4 phòng ngủ được sắp xếp khoa học đảm bảo sự riêng tư.



Xem thêm:
- 35+ Mẫu nhà cấp 4 chữ L mái tôn đẹp, giá tốt năm 2026
H3 Mẫu nhà cấp 4 4 phòng ngủ 400 triệu ở nông thôn
Mẫu nhà cấp 4 4 phòng ngủ 400 triệu ở nông thôn là lựa chọn phù hợp với nhiều gia đình nhờ chi phí xây dựng hợp lý, cung như khả năng đáp ứng tốt cho nhu cầu sinh hoạt hàng ngày. Với lợi thế là quỹ đất rộng, các thiết kế thường ưu tiên không gian thoáng đãng, bố trí công năng khoa học và tận dụng ánh sáng tự nhiên. Kiến trúc nhà cấp 4 đơn giản nhưng vẫn đảm bảo được tính thẩm mỹ, phù hợp với cảnh quan và lối sống gần gũi của khu vực nông thôn.



Xem thêm:
- 55+ Mẫu nhà cấp 4 nông thôn đẹp và gần gũi với thiên nhiên 2026
Mẫu nhà cấp 4 4 phòng ngủ 400 triệu có sân vườn
Mẫu nhà cấp 4 4 phòng ngủ 400 triệu có sân vườn mang đến không gian sống thoáng đãng, gần gũi với thiên nhiên và phù hợp với nhiều gia đình yêu thích môi trường sống yên tĩnh. Thiết kế này thường tận dụng khoảng đất xung quanh để bố trí sân trước, vườn nhỏ hoặc lối đi trồng nhiều cây xanh, giúp cho tổng thể ngôi nhà trở nên hài hòa và mát mẻ hơn.



Xem thêm:
- Tuyển chọn 21+ mẫu nhà vườn cấp 4 đẹp, thông thoáng 2026
Mẫu nhà cấp 4 4 phòng ngủ 400 triệu có gác lửng
Mẫu nhà cấp 4 4 phòng ngủ 400 triệu có gác lửng là giải pháp hợp lý giúp mở rộng không gian mà vẫn tối ưu được diện tích và chi phí xây dựng. Phần gác lửng giúp tăng thêm diện tích sinh hoạt mà không cần phải xây dựng thêm tầng, đồng thời tạo điểm nhấn kiến trúc hiện đại và ấn tượng cho ngôi nhà. Nhờ cách bố trí linh hoạt mà mẫu nhà cấp 4 4 phòng ngủ 400 triệu vẫn đảm bảo được sự tiện nghi và riêng tư cho các thành viên trong gia đình.



Xem thêm:
- Ý tưởng xây nhà 1 trệt 1 lầu 400 triệu ấn tượng năm 2026
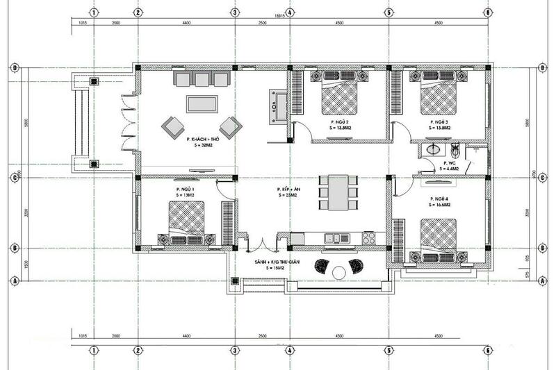
Bản vẽ công năng nhà cấp 4 4 phòng ngủ 400 triệu đẹp
Bản vẽ nhà cấp 4 4 phòng ngủ 400 triệu thường được thiết kế tối ưu diện tích nhằm đảm bảo đầy đủ các khu vực sinh hoạt cần thiết như phòng khách, bếp, phòng ăn, phòng ngủ và nhà vệ sinh. Cách sắp xếp hợp lý không chỉ giúp không gian trở nên thông thoáng mà còn tạo ra sự thuận tiện trong sinh hoạt hàng ngày của các thành viên trong gia đình. Dưới đây là bản vẽ công năng nhà cấp 4 4 phòng ngủ 400 triệu đẹp, được nhiều gia chủ lựa chọn xây dựng.

Dự toán chi phí xây dựng nhà cấp 4 4 phòng ngủ 400 triệu chi tiết
Việc dự toán chi phí từ đầu là khâu rất quan trọng để xây dựng được một ngôi nhà cấp 4 4 phòng ngủ 400 triệu vừa đẹp vừa tiết kiệm ngân sách.Dưới đây là bảng dự toán chi phí xây dựng chi tiết để gia chủ có thể tham khảo:

Lưu ý quan trọng khi xây dựng nhà cấp 4 4 phòng ngủ 400 triệu
Để sở hữu một ngôi nhà cấp 4 4 phòng ngủ 400 triệu vừa đảm bảo thẩm mỹ vừa phù hợp ngân sách, gia chủ cần có sự tính toán kỹ lưỡng trong từng khâu. Việc nắm rõ một số lưu ý quan trọng sẽ giúp hạn chế phát sinh chi phí, tối ưu công năng và đảm bảo ngôi nhà đáp ứng tốt nhu cầu sinh hoạt của gia đình.
- Lựa chọn phương án xây dựng phù hợp với ngân sách
- Ưu tiên kiến trúc đơn giản, hạn chế các chi tiết cầu kỳ
- Bố trí công năng khoa học để tối ưu diện tích mà vẫn tiện nghi
- Lựa chọn đơn vị thiết kế và thi công uy tín để đảm bảo về giải pháp phù hợp và tối ưu chi phí

Hy vọng những gợi ý về mẫu nhà cấp 4 4 phòng ngủ 400 triệu trong vài viết trên sẽ giúp bạn có thêm ý tưởng để hoàn thiện tổ ấm của mình. Nếu đang tìm kiếm đơn vị thiết kế và thi công nhà ở uy tín, thì đừng quên liên hệ ngay tới Hasa Home để được hỗ trợ và tư vấn tận tâm nhé!


Bài viết liên quan
35+ Mẫu nhà trệt đẹp, đơn giản và tối ưu chi phí 2026
45+ Mẫu nhà 1 trệt 1 lầu đẹp và ấn tượng nhất hiện nay
45+ Mẫu thiết kế nhà 1 trệt 1 lầu 5x10m đẹp và ấn tượng 2026
45+ Ý tưởng xây nhà 1 trệt 1 lầu 500 triệu xu hướng năm 2026
35+ Mẫu nhà mái ngói 1 tầng đẹp, đơn giản và đầy đủ tiện nghi
30+ Mẫu nhà chữ L 1 tầng đẹp, đầy đủ tiện nghi 2026