Các mẫu thiết kế nhà 2 tầng 50m2 3 phòng ngủ có những ưu điểm như thế nào? Vì sao mẫu nhà này lại được rất nhiều gia đình yêu thích đến vậy? Trong bài viết dưới đây hãy cùng Hasa Home làm rõ về đặc điểm của mẫu nhà nhà ở này cũng như tham khảo các mẫu thiết kế đang được nhiều chủ đầu tư đánh giá cao nhất hiện nay.
Nhu cầu xây nhà 2 tầng 50m2 3 phòng ngủ hiện nay như thế nào?
Hiện nay nhu cầu xây dựng nhà 2 tầng 50m2 3 phòng ngủ đang là lựa chọn của không ít gia đình. Mẫu thiết kế nhà 2 tầng 50m2 3 phòng ngủ này không chỉ đáp ứng được nhu cầu sử dụng của hầu hết các gia đình hiện nay mà còn đảm bảo tiết kiệm tối đa các khoản chi phí trong quá trình xây dựng. Nhất là đối với các gia đình ở khu vực thành thị, diện tích đất không quá nhiều thì mẫu nhà 2 tầng 50m2 được xem là lựa chọn vô cùng lý tưởng.
Ngoài ra, mẫu thiết kế nhà này cũng không quá phức tạp trong việc thi công nên ngày càng được nhiều gia đình quan tâm hơn. Nếu bạn cũng đang muốn tìm hiểu về mẫu nhà này thì có thể tham khảo ngay một số nội dung bên dưới đây của Hasa Home.

Lý do nên chọn các mẫu thiết kế nhà 2 tầng 50m2 3 phòng ngủ
Không phải ngẫu nhiên mà mẫu thiết kế nhà 2 tầng 50m2 3 phòng ngủ này lại được nhiều gia đình quan tâm và yêu thích như vậy. Dưới đây sẽ là một số các ưu điểm nổi bật mà bạn có thể tham khảo như sau:
- Diện tích phù hợp: Diện tích 50m2 được đánh giá là khá phù hợp với hầu hết nhu cầu sử dụng cơ bản của các gia đình hiện nay. Theo đó mẫu nhà 2 tầng này sẽ rất phù hợp với những gia đình ở thành thị, cần tiết kiệm tối đa diện tích sử dụng.
- Kiến trúc đơn giản: Kiến trúc nhà 2 tầng 50m2 3 phòng ngủ cũng khá đơn giản, không có quá nhiều chi tiết cầu kỳ nhưng vẫn đảm bảo được tính thẩm mỹ cho không gian sống. Ngoài ra, mẫu nhà 50m2 này cũng dễ dàng kết hợp với nhiều phong cách thiết kế khác nhau từ hiện đại, tối giản cho đến cổ điển, sang trọng.

- Dễ dàng phân chia không gian sống: Với diện tích 50m2 và công năng 2 tầng, các chủ đầu tư cũng dễ dàng trong việc phân chia các không gian sử dụng bên trong căn nhà của mình. Bạn có thể chia thành các khu vực sinh hoạt chung và riêng để tạo nên sự thoải mái và thuận tiện nhất cho các thành viên trong gia đình.
- Phù hợp với các gia đình đông người: Với công năng 3 phòng ngủ thì mẫu nhà này có thể phù hợp với những gia đình đông thành viên. Trong đó mỗi phòng ngủ sẽ được chia theo từng thế hệ như phòng ngủ của ông bà, phòng ngủ của bố mẹ và phòng ngủ của con. Chắc chắn đây là phương án hoàn hảo để các thành viên trong gia đình luôn có được không gian riêng của mình.

- Thời gian thi công nhanh: Mẫu thiết kế nhà 2 tầng 50m2 3 phòng ngủ có kết cấu không quá phức tạp nên thời gian thi công cũng nhanh hơn so với các kiểu nhà khác. Từ đó cũng giúp gia chủ tiết kiệm được một khoản chi phí về nhân công.
- Tiết kiệm chi phí thi công: Với mức chi phí không quá lớn là bạn đã có thể sở hữu cho mình một mẫu nhà 2 tầng 50m2 3 phòng ngủ với tính thẩm mỹ cao và công năng sử dụng tối ưu. Vì vậy đây cũng là thiết kế được khá nhiều gia đình lựa chọn khi có điều kiện tài chính không quá dư giả.
Cách bố trí mặt bằng trong thiết kế nhà 2 tầng 50m2 3 phòng ngủ
Dưới đây là cách bố trí công năng sử dụng trong nhà 2 tầng 50m2 3 phòng ngủ đang được nhiều chủ đầu tư áp dụng nhất hiện nay.
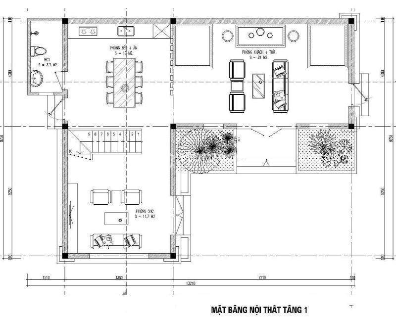
Mặt bằng công năng tầng 1
Bên trong không gian tầng 1 sẽ là khu vực phòng khách nối liền với phòng bếp, vừa tạo sự liên kết vừa đảm bảo tối ưu diện tích sử dụng cho căn nhà. Bên cạnh đó bạn cũng có thể bố trí thêm một phòng ngủ nhỏ ở cuối nhà. Nhà vệ sinh sẽ được bố trí ở khu vực cầu thang để đảm bảo sự thuận tiện trong quá trình sinh hoạt hàng ngày.

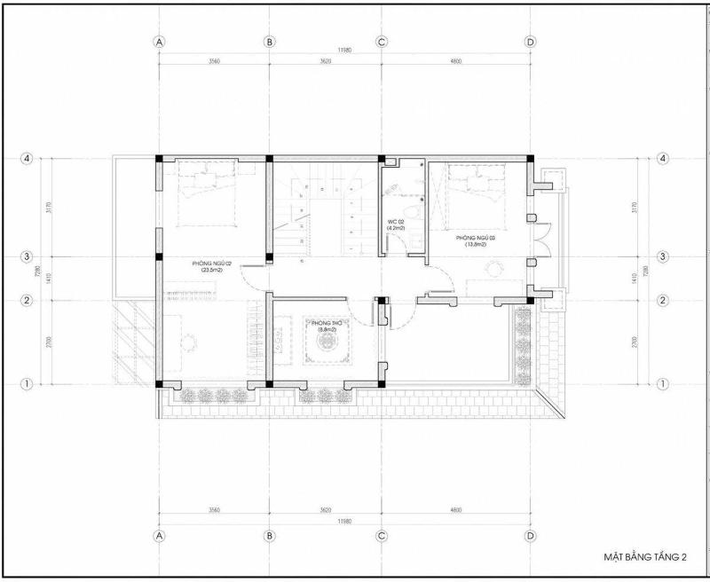
Mặt bằng công năng tầng 2
Mặt bằng tầng 2 sẽ được sử dụng hoàn toàn cho không gian phòng ngủ. Theo đó bạn có thể thiết kế 2 phòng ngủ ở 2 bên cầu thang, kết hợp ban công bên ngoài để mang lại sự thông thoáng cho căn phòng. Nhà vệ sinh sẽ được bố trí ở khu vực cạnh cầu thang và sử dụng chung cho cả 2 phòng ngủ để tối ưu diện tích.

Các mẫu thiết kế nhà 2 tầng 50m2 3 phòng ngủ được yêu thích nhất
Nếu bạn vẫn đang băn khoăn về các mẫu thiết kế nhà 2 tầng 50m2 3 phòng ngủ thì có thể tham khảo ngay các mẫu thiết kế đã được Hasa Home tổng hợp bên dưới đây nhé.
Mẫu thiết kế nhà 2 tầng 50m2 3 phòng ngủ dạng ống
Thiết kế dạng hình ống là một trong những mẫu nhà được rất nhiều chủ đầu tư lựa chọn với ưu điểm nổi bật là giúp tối ưu diện tích sử dụng. Theo đó mẫu thiết kế nhà 2 tầng 50m2 3 phòng ngủ này sẽ phù hợp với những mảnh đất có hạn chế về diện tích nhưng vẫn đảm bảo bố trí đầy đủ công năng sử dụng cần thiết và tạo cảm giác thông thoáng nhờ cách sắp xếp không gian khoa học.



Xem thêm:
- 15+ Mẫu thiết kế nhà 5x10m 2 tầng 3 phòng ngủ đẹp nhất 2026
Mẫu thiết kế nhà 2 tầng 50m2 3 phòng ngủ mái Thái
Thiết kế mái Thái mang đến cho ngôi nhà vẻ sang trọng, đẳng cấp và là lựa chọn phù hợp cho các mẫu nhà 2 tầng 50m2 3 phòng ngủ hiện nay. Bên cạnh giá trị thẩm mỹ, hệ mái Thái còn mang lại hiệu quả tối ưu trong việc chống thấm, cách nhiệt, giúp không gian bên trong luôn thông thoáng và mát mẻ.



Xem thêm:
- 15+ Mẫu thiết kế nhà 2 tầng 3 phòng ngủ 60m2 đẹp nhất 2026
Mẫu thiết kế nhà 2 tầng 50m2 3 phòng ngủ mái bằng
Mẫu thiết kế nhà 2 tầng 50m2 3 phòng ngủ mái bằng cũng là một trong những lựa chọn được rất nhiều gia đình yêu thích hiện nay. Thiết kế mái bằng không chỉ đảm bảo tính thẩm mỹ mà còn mang lại cảm giác vuông vắn, kiên cố cho căn nhà. Ngoài ra, bạn còn có thể tận dụng phần mái bằng để làm sân thượng, khu thư giãn hoặc trồng cây xanh, giúp không gian sống thêm thoáng đãng và tiện nghi.



Xem thêm:
- 15+ Mẫu thiết kế nhà ống 2 tầng 3x20m tối ưu công năng 2026
Mẫu nhà 2 tầng 50m2 3 phòng ngủ có sân vườn
Mẫu thiết kế nhà 2 tầng 50m2 3 phòng ngủ có sân vườn sẽ rất phù hợp với những gia chủ yêu thích không gian xanh, gần gũi với thiên nhiên. Thiết kế thêm sân vườn không chỉ giúp các thành viên có nơi để nghỉ ngơi, thư giãn mà còn mang lại một không gian sống trong lành và giúp bảo vệ sức khỏe hiệu quả nhất cho cả gia đình.



Xem thêm:
- 15+ Mẫu thiết kế nhà ống 2 tầng 4.5 x15m đẹp, ấn tượng nhất
Bí quyết thiết kế nhà 2 tầng 50m2 3 phòng ngủ tiết kiệm chi phí
Để có thể tối giản các khoản chi phí không đáng có trong quá trình thiết kế nhà 2 tầng 50m2 3 phòng ngủ thì các chủ đầu tư cần nằm được một số lưu ý quan trọng ngay dưới đây!
Tối ưu về thiết kế nhà
Nhiều quan niệm cho rằng các thiết kế nhà phải nổi bật mới đẹp nhưng thực tế đã cho thấy hoàn toàn không phải như vậy. Bằng chứng là có rất nhiều căn nhà có thiết kế đơn giản nhưng vẫn mang tính thẩm mỹ khá cao. Vì vậy để tối ưu chi phí xây dựng mẫu nhà 2 tầng 50m2 3 phòng ngủ thì bạn nên lựa chọn phong cách tối giản hoặc hiện đại.

Bố trí mặt bằng khoa học
Bố trí mặt bằng công năng bên trong căn nhà cũng là yếu tố mà các gia chủ cần quan tâm để có thể tối ưu mọi chi phí trong quá trình xây dựng. Mẫu thiết kế nhà 2 tầng 50m2 3 phòng ngủ được bố trí không gian khoa học, hài hòa không chỉ giúp tiết kiệm chi phí mà còn mang lại sự rộng rãi và thoải mái trong quá trình sử dụng.

Cân nhắc về nguyên vật liệu xây dựng
Nguyên vật liệu xây dựng cũng là một trong những yếu tố quan trọng có tác động trực tiếp đến giá thành thi công nhà 2 tầng 50m2 3 phòng ngủ hiện nay . Vì vậy tùy theo điều kiện kinh tế của gia đình mà bạn có thể cân nhắc lựa chọn các loại vật liệu với giá thành phù hợp nhất. Tuy nhiên bạn cũng nên ưu tiên các vật liệu có đầy đủ nguồn gốc, xuất xứ, không nên vì ham rẻ mà sử dụng những loại nguyên vật liệu kém chất lượng, không rõ nguồn gốc.

Xem thêm:
- 45+ Mẫu thiết kế nhà 1 trệt 1 lầu 5x10m đẹp và ấn tượng 2026
Lựa chọn thời điểm thi công phù hợp
Việc lựa chọn thời điểm xây dựng công trình cũng là yếu tố có tác động trực tiếp đến chi phí thi công căn nhà của bạn. Thông thường mọi người đều lựa chọn 3 tháng đầu năm hoặc 3 tháng cuối năm để xây nhà nhưng đây cũng chính là thời điểm “vàng” trong xây dựng. Do đó mà giá thành xây dựng tại thời điểm này cũng sẽ cao hơn bình thường. Vậy nên bạn cần cân nhắc thật kỹ để lựa chọn được thời điểm thi công phù hợp nhất, vừa đảm bảo tiết kiệm chi phí, vừa đảm bảo tiến độ của công trình.

Lựa chọn đơn vị thi công uy tín
Đơn vị thi công cũng ảnh hưởng rất nhiều đến tiến độ cũng như chất lượng công trình. Một đơn vị thi công có uy tín và năng lực không chỉ giúp bạn hoàn thiện căn nhà của mình theo đúng tiến độ, đảm bảo chất lượng mà còn hạn chế tối đa việc phát sinh thêm các khoản chi phí không đáng có, giúp bạn tiết kiệm khá nhiều chi phí cho việc xây dựng căn nhà.

Xem thêm:
- 30+ Mẫu thiết kế nhà chữ L 2 tầng 60m2 được yêu thích nhất 2026
Chi phí xây dựng nhà 2 tầng 50m2 3 phòng ngủ bao nhiêu?
Chi phí thi công nhà 2 tầng 50m2 3 phòng ngủ hiện nay cũng là nội dung được các chủ đầu tư quan tâm rất nhiều. Theo đó chi phí thi công của mẫu nhà này còn phải phụ thuộc vào rất nhiều các yếu tố khác nhau như phong cách thiết kế, vật liệu sử dụng, thời điểm xây dựng,… Nếu bạn muốn tham khảo báo giá chi tiết thì có thể liên hệ với các đơn vị thi công nhà ở hiện nay, tùy theo điều kiện thực tế của mỗi công trình, bạn sẽ nhận được các báo giá chính xác nhất từ mỗi bên.
Trên đây là tất cả các thông tin về mẫu thiết kế nhà 2 tầng 50m2 3 phòng ngủ cơ bản mà bạn cần nắm được trước khi bắt tay vào thi công công trình này. Hy vọng với những chia sẻ từ Hasa Home sẽ giúp cho bạn lựa chọn được các thiết kế phù hợp nhất với không gian sống của mình.
Công ty thiết kế kiến trúc Hasa Home
SĐT: 0866 868 926
Website: https://hasahome.com/
Địa chỉ văn phòng: Số 4 Ngõ 123 Trung Kính, Phường Yên Hòa, TP Hà Nội
Nguồn hình ảnh: Sưu tầm


Bài viết liên quan
65+ mẫu nhà 2 tầng 8x10m hiện đại, tiện nghi nhất 2026
40+ Mẫu thiết kế nhà 2 tầng 3 phòng ngủ 80m2 ấn tượng 2026
45+ Mẫu nhà 1 trệt 1 lầu đẹp và ấn tượng nhất hiện nay
45+ Mẫu thiết kế nhà 1 trệt 1 lầu 5x10m đẹp và ấn tượng 2026
30+ Mẫu thiết kế nhà chữ L 2 tầng 60m2 được yêu thích nhất 2026
45+ Ý tưởng xây nhà 1 trệt 1 lầu 500 triệu xu hướng năm 2026