Những mẫu thiết kế nhà 2 tầng 100m2 mang lại không gian sống vô cùng thoải mái và tiện nghi với đầy đủ công năng phục vụ các thành viên trong gia đình. Mẫu nhà này xuất hiện khá phổ biến tại các vùng nông thôn, xa thành thị nơi có quỹ đất xây dựng rộng rãi. Trong bài viết sau, Hasa Home sẽ chia sẻ đến bạn những mẫu nhà 2 tầng 100m2 đẹp và sang trọng nhất hiện nay.
Bản vẽ thiết kế nhà 2 tầng 100m2 chi tiết năm 2026
Bản vẽ thiết kế nhà 2 tầng 100m2 chi tiết sẽ thể hiện rõ cách bố trí và sắp xếp không gian trong nhà để giúp gia chủ dễ dàng hình dung hơn. Bản vẽ sẽ mô tả mặt bằng tầng 1 và tầng 2 của căn nhà theo cách chi tiết và dễ hiểu nhất.
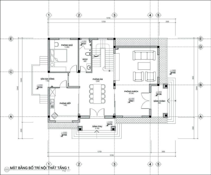
Bản vẽ mặt bằng tầng 1 nhà 2 tầng 100m2
Mời bạn tham khảo qua một vài ý tưởng thiết kế mặt bằng tầng 1 nhà 2 tầng 100m2 sau đây. Khu vực tầng 1 thường bố trí chủ yếu là không gian sinh hoạt chung bao gồm phòng khách, phòng bếp, phòng ngủ master và WC chung.


Bản vẽ mặt bằng tầng 2 nhà 2 tầng 100m2
Đối với căn nhà 2 tầng diện tích 100m2 này, mặt bằng tầng 2 sẽ dành cho không gian sinh hoạt riêng của các thành viên như phòng ngủ, phòng đọc sách, phòng làm việc, phòng thờ và sân phơi. Tham khảo qua một số bản thiết kế mặt bằng tầng 2 dưới đây:


Cách tính chi phí thiết kế nhà 2 tầng 100m2 mới nhất
Dự toán chi phí là hạng mục quan trọng trước khi bắt tay vào xây dựng nhà ở. Để tính được chi phí thiết kế nhà 2 tầng 100m2 một cách chính xác nhất thì bạn cần chú ý đến 2 yếu tố: tổng diện tích xây dựng và đơn giá xây dựng.
Đầu tiên chúng ta cần xác định tổng diện tích xây dựng của căn nhà bao gồm:
- Diện tích móng nhà sẽ bằng 1/2 diện tích mặt sàn: 50m2
- Diện tích sàn tầng 1: 100m2
- Diện tích sàn tầng 2: 100m2
Gia chủ có thể lựa chọn gói xây dựng phần thô hoặc gói xây dựng trọn gói tùy theo nhu cầu và mức giá được cập nhật như sau:
- Đơn giá xây dựng phần thô: Từ 3.200.000 – 3.500.000 (VNĐ/m2)
- Đơn giá xây dựng trọn gói: Từ 3.800.000 – 4.500.000 (VNĐ/m2)
Từ đó, ta có thể tính được chi phí xây dựng nhà 2 tầng 100m2 theo từng gói như sau:
- Chi phí xây nhà 2 tầng 100m2 phần thô: (50m2 + 100m2 + 100m2 + 50m2) x 3.200.000 = 960.000.000 (VNĐ)
- Chi phí xây nhà 2 tầng 100m2 trọn gói: (50m2 + 100m2 + 100m2 + 50m2) x 3.800.000 = 1.140.000.000 (VNĐ)
Tuy nhiên, mức giá được tính ở trên sẽ không cố định và sẽ có sự thay đổi do ảnh hưởng bởi nhiều yếu tố khác nhau. Chẳng hạn như giá vật liệu, địa chỉ công trình, thời điểm xây dựng và sự cạnh tranh của các đơn vị thiết kế.

Những mẫu thiết kế nhà 2 tầng 100m2 hiện đại, tiện nghi năm 2026
Bạn đang muốn tham khảo thêm nhiều mẫu thiết kế nhà 2 tầng 100m2 đẹp, tiện nghi để có thêm những ý tưởng mới cho dự án của mình. Sau đây là một vài mẫu thiết kế nhà 100m2 có 2 tầng đang là xu hướng năm 2026 và được nhiều khách hàng yêu thích nhất hiện nay.
Mẫu thiết kế nhà 2 tầng 100m2 hình ống
Thiết kế nhà 2 tầng 100m2 hình ống được ưa chuộng ở khu vực thành thị với khuôn đất là 5x20m. Nhà ống 5x20m có lợi thế về chiều dài, giúp kiến trúc sư có những phương án bố trí không gian khoa học và logic
Với mẫu thiết kế nhà 2 tầng có 3 phòng ngủ, mặt tiền của nhà ống gây ấn tượng với kiến trúc hiện đại, cách phối màu ấn tượng giúp tạo nên tính thẩm mỹ cho căn nhà.



Xem thêm:
- 60+ Mẫu thiết kế nhà ống 2 tầng 5x19m đẹp năm 2026
Mẫu thiết kế nhà 2 tầng 100m2 hình chữ L
Các mẫu thiết kế nhà 2 tầng 100m2 hình chữ L có ưu điểm nổi bật là không gian sinh hoạt vô cùng thoải mái. Nhà 2 tầng chữ L ở nông thôn có lợi thế về tính thẩm mỹ và phù hợp với nhiều phong cách kiến trúc khác nhau. Gia chủ có thể tận dụng được thêm không gian sân vườn cho các công năng, tiện ích như khu cây xanh, bàn trà, gara để xe,…



Xem thêm:
- 25+ Mẫu thiết kế nhà 2 tầng 6×15 đẹp, hiện đại và đầy đủ tiện nghi
Mẫu thiết kế nhà 2 tầng 100m2 có sân vườn
Các mẫu thiết kế nhà 2 tầng 100m2 có sân vườn được rất nhiều gia chủ ưa chuộng khi có ưu thế về diện mạo và sự gần gũi với thiên nhiên. Nhà 2 tầng có sân vườn thường được xây theo hình vuông để giúp tạo nên góc nhìn rộng rãi, vuông vắn. Nhà vuông 100m2 có sân vườn sẽ thích hợp ở khu vực nông thôn hoặc khu dân cư biệt lập ở xa thành thị.



Xem thêm:
- 69+ Mẫu thiết kế nhà vuông 10×10 2 tầng đẹp, sang trọng 2026
Mẫu thiết kế nhà 2 tầng 100m2 mái bằng hiện đại
Thiết kế nhà 2 tầng 100m2 theo kiểu mái bằng sẽ mang đến cho công trình một diện mạo trẻ trung và năng động. Kiểu dáng này có thể dễ dàng kết hợp cùng nhiều xu hướng thiết kế khác nhau như hiện đại, tối giản, Bắc Âu, sân vườn…Bên cạnh mẫu nhà mái bằng dáng vuông quen thuộc, bạn cũng có thể tạo điểm nhấn với những đường lượn sóng hoặc phối màu sơn lạ mắt.



Xem thêm:
- 55+ Mẫu nhà vuông 2 tầng 80m2 đẹp có kèm dự toán chi phí
Mẫu thiết kế nhà 2 tầng 100m2 dạng biệt thự cao cấp
Với kết cấu vững chắc kết hợp cùng bề ngoài đồ sộ, thiết kế nhà 2 tầng 100m2 dạng biệt thự cao cấp được ưa chuộng bởi các chủ đầu tư có điều kiện kinh tế tốt tại các khu dân cư biệt lập, xa thành thị. Nhà 2 tầng biệt thự sở hữu kiến trúc thời thượng, thể hiện đẳng cấp, phong cách sống của chủ đầu tư.



Xem thêm:
- 35+ Mẫu thiết kế nhà rộng 7m dài 13m sang trọng, độc đáo 2026
Hasa Home – Công ty chuyển thiết kế nhà 2 tầng 100m2 uy tín năm 2026
Hasa Home là đơn vị thiết kế nhà 2 tầng 100m2 với 5 năm kinh nghiệm, luôn đảm bảo mang đến các mẫu nhà tối ưu công năng, bố cục khoa học và tính thẩm mỹ cao cho khách hàng. Mỗi bản vẽ đều được thực hiện tỉ mỉ, cẩn thận bởi đội ngũ kiến trúc sư chuyên nghiệp giúp bạn tiết kiệm tối đa thời gian và chi phí thi công cho công trình của mình. Cùng với đó là mức giá vô cùng hợp lý, mang đến nhiều lợi ích nhất cho khách hàng khi sử dụng dịch vụ tại Hasa Home.

Quý đọc giả đã được chiêm ngưỡng thêm những mẫu thiết kế nhà 2 tầng 100m2 hiện đại, tiện nghi trong bài viết trên của Hasa Home. Nếu còn bất kỳ thắc mắc nào, hãy nhanh tay liên hệ với chúng tôi theo thông tin bên dưới để được tư vấn chi tiết nhất.
Công ty thiết kế kiến trúc Hasa Home
SĐT: 0866 868 926
Website: https://hasahome.com/
Địa chỉ văn phòng: Số 4 Ngõ 123 Trung Kính, Phường Yên Hòa, TP Hà Nội
Nguồn hình ảnh: Sưu tầm


Bài viết liên quan
65+ mẫu nhà 2 tầng 8x10m hiện đại, tiện nghi nhất 2026
40+ Mẫu thiết kế nhà 2 tầng 3 phòng ngủ 80m2 ấn tượng 2026
45+ Mẫu nhà 1 trệt 1 lầu đẹp và ấn tượng nhất hiện nay
45+ Mẫu thiết kế nhà 1 trệt 1 lầu 5x10m đẹp và ấn tượng 2026
30+ Mẫu thiết kế nhà chữ L 2 tầng 60m2 được yêu thích nhất 2026
45+ Ý tưởng xây nhà 1 trệt 1 lầu 500 triệu xu hướng năm 2026