Thiết kế nhà ngang 10m sâu 8m đang được các gia chủ quan tâm và yêu thích khi sở hữu nhiều ưu điểm ấn tượng. Nhà ngang 10m phù hợp với đa dạng phong cách khác nhau. Cùng với đó là cách bố trí không gian hài hòa sẽ tạo nên sự tiện lợi trong quá trình sinh hoạt. Tham khảo ngay bài viết dưới đây của Hasa Home để chiêm ngưỡng thêm nhiều mẫu nhà ngang 10m sâu 8m tiện nghi năm 2026.
Bản vẽ mặt bằng công năng thiết kế nhà ngang 10m sâu 8m
Thiết kế nhà ngang 10m sâu 8m được bố trí mặt bằng công năng khoa học, có logic giúp tạo sự thuận tiện cho người sử dụng và mang đến tính thẩm mỹ cho căn nhà. Phần lớn những mẫu nhà ngang 10m đều được xây từ 2 – 3 tầng tùy vào nhu cầu của từng gia chủ. Dưới đây là bản vẽ công năng phổ biến mà các chủ đầu tư có thể tham khảo qua:
Mặt bằng công năng tầng 1 nhà ngang 10m sâu 8m
Đối với khu vực tầng 1 trong bản vẽ thiết kế nhà ngang 10m sâu 8m sẽ ưu tiên cho các khu vực sinh hoạt chung của gia đình. Các công năng cơ bản ở tầng 1 bao gồm phòng khách, phòng ăn và bếp, WC chung, sân trước nhà.

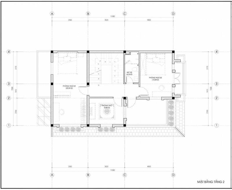
Mặt bằng công năng tầng 2 nhà ngang 10m sâu 8m
Đối với khu vực tầng 2 hoặc cao hơn là tầng 3 của bản vẽ thiết kế nhà ngang 10m sâu 8m sẽ được bố trí không gian sinh hoạt riêng cho từng thành viên. Bao gồm các khu vực phòng ngủ, phòng làm việc, nhà vệ sinh, ban công, sân phơi và phòng thờ.

Mặt tiền ấn tượng của mẫu thiết kế nhà ngang 10m sâu 8m
Mặt tiền của mẫu thiết kế nhà ngang 10m sâu 8m chính là điểm nhấn đầu tiên khi nhìn vào căn nhà. Kiến trúc của nhà ngang 10m sẽ được thể hiện rất rõ nét ở mặt tiền nhờ bề ngang lớn. Dưới đây là một số mẫu mặt tiền nhà ngang 10m sâu 8m đang được ưa chuộng mà gia chủ có thể tham khảo.


Xem thêm:
- 65+ mẫu nhà 2 tầng 8x10m hiện đại, tiện nghi nhất 2026
Những mẫu thiết kế nhà ngang 10m sâu 8m sang trọng 2026
Việc tham khảo thêm nhiều mẫu thiết kế nhà ngang 10m sâu 8m sẽ giúp gia chủ có thêm những ý tưởng mới lạ cho dự án của mình. Một số mẫu nhà ngang 10m sâu 8m đầy đủ tiện nghi được yêu thích nhất 2026 sẽ xuất hiện ngay dưới đây.
Mẫu thiết kế nhà ngang 10m sâu 8m đơn giản
Các thiết kế nhà ngang 10m sâu 8m phong cách tối giản luôn mang đến không gian sống vô cùng thoáng mát và thoải mái cho các thành viên. Việc sử dụng kiến trúc tối giản sẽ giúp căn nhà tận dụng được tối đa diện tích sử dụng. Nhà ngang 10m sâu 8m theo phong cách tối giản thường sẽ sử dụng gam màu nhạt cùng nội thất đơn giản có cùng tone màu.



Xem thêm:
- 30+ Mẫu thiết kế nhà mặt tiền 12m sâu 8m ấn tượng 2026
Mẫu thiết kế nhà ngang 10m sâu 8m hiện đại
Những mẫu nhà chiều ngang 10m sâu 8m phong cách hiện đại luôn được nhiều gia chủ lựa chọn bởi sự mới mẻ, trẻ trung và không lỗi thời. Nhà mặt tiền 10m sâu 8m phong cách hiện đại mang đến nét thẩm mỹ ấn tượng nhờ cách phối màu hài hòa. Thêm vào đó là cách bố trí không gian sinh hoạt logic, tối ưu công năng giúp mang lại cảm giác thoải mái cho các thành viên.



Xem thêm:
- 35+ Thiết kế nhà mặt tiền 12m sâu 10m tối ưu chi phí 2026
Mẫu nhà ngang 10m sâu 8m 2 tầng nhỏ gọn
Đối với những gia đình nhỏ từ 3 – 4 thành viên sẽ ưu tiên lựa chọn thiết kế nhà ngang 10m sâu 8m có 2 tầng để giúp tối ưu diện tích. Với diện tích 2 mặt sàn lên tới 160m2, các gia chủ có thể thiết kế đầy đủ công năng từ cơ bản đến hiện đại để đáp ứng đầy đủ nhu cầu sử dụng của các thành viên trong gia đình. Kiến trúc nhà 2 tầng ngang 10m nổi bật với mặt tiền lớn cùng cách phối màu ấn tượng.



Xem thêm:
- 96+ Mẫu thiết kế nhà mặt tiền 8m sâu 12m đẹp, ấn tượng nhất
Mẫu thiết kế nhà ngang 10m sâu 8m 3 tầng sang trọng
Các mẫu thiết kế nhà ngang 10m sâu 8m có 3 tầng sở hữu kiến trúc tân thời vô cùng sang trọng cũng đang được nhiều gia chủ yêu thích trong thời gian gần đây. Với không gian 3 tầng rộng rãi sẽ giúp những gia đình có đông thế hệ chung sống có thể sử dụng thoải mái sinh hoạt với cách bố trí không gian thông minh và khoa học.



Xem thêm:
- Top 25+ mẫu thiết kế nhà ngang 6m dài 14m đẹp, sang trọng 2026
Mẫu thiết kế nhà ngang 10m sâu 8m có sân vườn
Cuối cùng là những mẫu nhà ngang 10m sâu 8m có sân vườn xanh mát giúp tạo không gian sống trong lành và gần gũi với thiên nhiên. Thiết kế nhà sân vườn mặt tiền 10m thường có xu hướng trẻ trung với các gam màu sáng để đồng bộ với ánh sáng tự nhiên. Không gian sân vườn được bố trí các công năng hiện đại như tiểu cảnh, sân chơi, bể bơi sang trọng.



Hasa Home – Công ty thiết kế nhà ngang 10m sâu 8m uy tín hiện nay
Hasa Home chắc chắn sẽ là lựa chọn cực kỳ hoàn hảo cho gia đình bạn với những mẫu thiết kế nhà ngang 10m sâu 8m tuyệt đẹp và đang cực kỳ thịnh hành hiện nay. Chúng tôi đã có hơn 5 năm hoạt động, sở hữu đội ngũ kiến trúc sự tận tâm, dày dặn kinh nghiệm cam kết sẽ mang đến mẫu thiết kế nhà ngang 10m ưng ý và tối ưu chi phí nhất cho gia đình bạn.

Bài viết trên của Hasa Home đã mang đến những mẫu thiết kế nhà ngang 10m sâu 8m đang được yêu thích nhất trong năm 2026. Nếu còn bất kỳ thắc mắc nào, hãy liên hệ ngay với chúng tôi qua thông tin bên dưới đây.
Công ty thiết kế kiến trúc Hasa Home
SĐT: 0866 868 926
Website: https://hasahome.com/
Địa chỉ văn phòng: Số 4 Ngõ 123 Trung Kính, Phường Yên Hòa, TP Hà Nội
Nguồn hình ảnh: Sưu tầm


Bài viết liên quan
35+ Mẫu thiết kế nhà rộng 7m dài 13m sang trọng, độc đáo 2026
35+ Mẫu thiết kế nhà mặt tiền 8m sâu 10m hiện đại 2026
Tổng hợp 35+ mẫu nhà vuông đẹp, hiện đại và đầy đủ tiện nghi
96+ Mẫu thiết kế nhà mặt tiền 8m sâu 12m đẹp, ấn tượng nhất
40+ Mẫu thiết kế nhà mặt tiền 8m sâu 15m hợp xu hướng 2026
35+ Thiết kế nhà mặt tiền 12m sâu 10m tối ưu chi phí 2026