Các mẫu thiết kế nhà ngang 6m dài 7m đang được khá nhiều gia đình lựa chọn khi sở hữu mặt tiền lớn giúp cho việc bố trí công năng dễ dàng hơn. Vậy mẫu nhà này còn những ưu điểm nổi bật nào khác mà lại khiến nhiều gia chủ lựa chọn đến vậy, tất cả sẽ được Hasa Home chia sẻ ngay dưới đây.
Phối cảnh mặt tiền mẫu thiết kế nhà ngang 6m dài 7m cực đẹp
Một trong những phương án giúp cho không gian sống của bạn trở nên sang trọng nhưng không quá cầu kỳ đó chính là dựa vào phương pháp tối ưu mặt tiền đẹp mắt. Các mẫu thiết kế nhà ngang 6m dài 7m sử dụng gam màu trung tính làm chủ đạo như màu trắng, xám nhạt, hay màu be nhẹ nhàng, tinh tế giúp làm nổi bật được tính thẩm mỹ mộc mạc và gần gũi với thiên nhiên nhiên của ngôi nhà.
Cửa cổng làm bằng sắt mỹ nghệ cao cấp giúp đảm bảo được sự chắc chắn và mang tới sự an toàn cho cả gia đình, mảng tường thông gió cách điệu làm tăng tính thẩm mỹ cho toàn bộ căn nhà.

Hệ thống cửa chính và phụ của mẫu thiết kế nhà ngang 6m dài 7m đều được làm từ kính cường lực cao cấp. Chất liệu này luôn được nhiều chủ đầu tư lựa chọn nhờ ưu điểm là tiện lợi, tiết kiệm chi phí và độ an toàn cao. Đặc biệt hơn, việc lựa chọn vị trí lắp đặt đèn led âm trần hợp lý sẽ đảm bảo ánh sáng cho mặt tiền, giúp nó luôn lung linh và nổi bật khi đêm xuống.
Bản vẽ chi tiết mặt bằng của mẫu thiết kế nhà ngang 6m dài 7m
Một công trình nhà ở hoàn hảo, không chỉ được đánh giá qua vẻ bề ngoài đẹp mà còn cần có công năng khoa học để thuận tiện nhất cho việc sinh hoạt của cả gia đình. Ngay sau đây là bản vẽ công năng của mẫu thiết kế nhà ngang 6m dài 7m mà bạn có thể tham khảo cho tổ ấm của mình:
Bản vẽ mặt bằng công năng tầng 1
Bản vẽ chi tiết mặt bằng tầng 1 sẽ bao gồm không gian sinh hoạt chung: 1 phòng khách, 1 phòng bếp, 1 phòng ngủ và 1 WC chung. Ngay cửa ra vào sẽ là không gian phòng khách với diện tích vừa phải, đầy đủ cho gia đình 3 – 4 thành viên sinh hoạt. Phòng khách được thiết kế liên thông với phòng bếp, tạo sự thuận lợi cho mọi thành viên trong nhà. Phòng ngủ ở tầng 1 được bố trí dành cho ông bà hay bố mẹ tuổi cao, mục đích là để hạn chế việc di chuyển cầu thang lên xuống, gây bất tiện và không đảm bảo an toàn. Phía cuối cùng của ngôi nhà là nhà vệ sinh, vừa đảm bảo việc sinh hoạt thuận tiện vừa không làm mất đi tính thẩm mỹ.

Bản vẽ mặt bằng công năng tầng 2
Mặt bằng tầng 2 của mẫu thiết kế nhà ngang 6m dài 7m sẽ gồm có 3 phòng ngủ và 1 nhà vệ sinh. Không gian tầng 2 dành riêng cho việc nghỉ ngơi của các thành viên trong gia đình, nội thất được bố trí theo ý tưởng của chủ nhà nhưng vẫn đảm bảo công năng và hài hòa với tổng thể chung. Ở giữa là một nhà vệ sinh chung diện tích vừa phải, thuận tiện cho việc sinh hoạt của các thành viên.

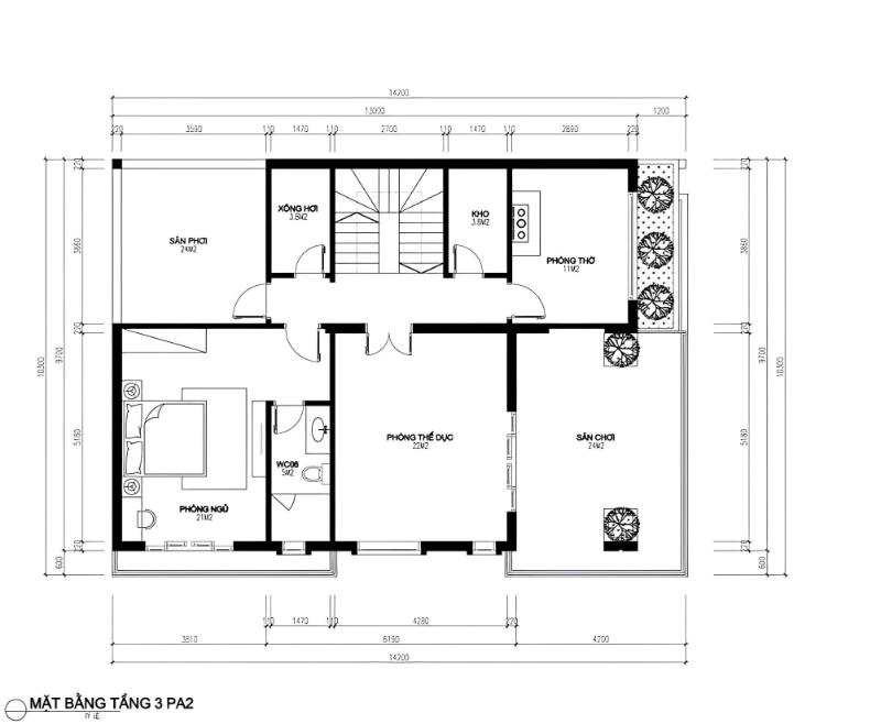
Bản vẽ chi tiết mặt bằng công năng tầng ba
Không gian tầng 3 là khu vực phòng giặt và sân phơi, có 1 phòng ngủ nhỏ và 1 phòng thờ. Đi từ phía dưới lên sẽ là một phòng ngủ nhỏ có hướng ban công vô cùng thông thoáng. Phía sau chính là khu vực giặt đồ và sân phơi liền kề nhau để tiện cho việc sinh hoạt. Gia chủ có thể trồng thêm cây xanh, hoa tươi hay đặt thêm bộ bàn ghế để làm nơi ngắm cảnh, thư giãn.

Top các mẫu thiết kế nhà ngang 6m dài 7m sang trọng và tiện nghi
Sở hữu mảnh đất có diện tích ngang 6m dài 7m tuy không quá lớn nhưng gia chủ vẫn có thể xây dựng được cho mình một căn nhà khang trang và đầy đủ tiện nghi. Không những thế mà gia chủ còn có thể linh hoạt lựa chọn đa dạng kiểu nhà khác nhau từ nhà cấp 4, nhà 2 tầng, 3 tầng hoặc có thêm tầng tum. Tùy vào nhu cầu sử dụng mà gia chủ sẽ thiết kế và bố trí các phòng chức năng một cách hợp lý.
Ngoài ra, nếu bí ý tưởng, bạn có thể tham khảo ngay các mẫu thiết kế nhà ngang 6m dài 7m sau đây mà Hasa Home gợi ý.
Mẫu thiết kế nhà cấp 4 ngang 6m dài 7m
Mặc dù thời đại công nghệ ngày càng phát triển, chất lượng cuộc sống ngày càng tăng cao, có nhiều mẫu nhà khác nhau, thế nhưng nhà cấp 4 vẫn sở hữu nét đẹp vượt thời gian và được nhiều chủ đầu tư ưa chuộng. Thiết kế nhà ngang 6m dài 7m cấp 4 được đánh giá là không bao giờ bị lỗi mốt nhờ kết cấu đơn giản nhưng vẫn đảm bảo tính thẩm mỹ.



Xem thêm:
- 15+ Mẫu thiết kế nhà rộng 6m dài 9m đẹp dẫn đầu xu hướng 2026
Mẫu thiết kế nhà ngang 6m dài 7m 2 tầng
Mẫu thiết kế nhà 2 tầng ngang 6m dài 7m có thể bố trí từ 2 – 3 phòng ngủ giúp đáp ứng công năng sử dụng cho gia đình từ 3 – 5 thành viên cùng sinh sống. Với mẫu nhà 2 tầng này bạn có thể sử dụng dạng mái Thái hay mái Nhật đều rất phù hợp. Công năng căn nhà sẽ được bố trí 1 phòng ngủ ở tầng 1 và 1 – 2 phòng ngủ ở tầng 2 để giúp tận dụng tối đa diện tích sử dụng.



Xem thêm:
- 25+ Mẫu thiết kế nhà rộng 7m dài 10m đẹp và đang được ưa chuộng
Mẫu thiết kế nhà 3 tầng ngang 6m dài 7m
Với mẫu thiết kế nhà ngang 6m dài 7m 3 tầng này thì vẫn sẽ giữ công năng 3 phòng ngủ ở tầng 1 và tầng 2 để giúp cân đối với tổng thể căn nhà. Còn khu vực tầng 3 sẽ được bố trí 1 phòng thờ, khu vực sân phơi và trồng thêm 1 vườn rau hoặc cây cảnh giúp gia chủ có không gian thư giãn và hít thở không khí trong lành.
Mẫu nhà 3 tầng ngang 6m dài 7m này có chi phí xây dựng không quá lớn nhưng vẫn giúp đáp ứng đầy đủ công năng sử dụng cho hầu hết gia đình ở nước ta hiện nay.



Xem thêm:
- 35+ Mẫu thiết kế nhà 4x10m có tầng lửng ấn tượng năm 2026
Mẫu thiết kế nhà ngang 6m dài 7m tân cổ điển
Điểm nhấn của mẫu nhà tân cổ điển ngang 6m dài 7m chính là vẻ đẹp của lối kiến trúc sang trọng, hơi hướng cổ điển những vẫn giữ được nét tinh tế. Với đường nét hoa văn mềm mại, không quá cầu kỳ sẽ giúp cho mẫu thiết kế nhà này thu hút được mọi sự chú ý của bất kỳ ai khi đi qua.



Xem thêm:
- Bản vẽ thiết kế nhà 4x12m đẹp và tối ưu công năng sử dụng
Hasa Home chuyên cung cấp các mẫu thiết kế nhà ngang 6m dài 7m tối ưu công năng
Với những gia chủ ở hữu quỹ đất nhỏ, việc lựa chọn được đơn vị thiết kế có quy trình làm việc rõ ràng và tư duy tốt về giải pháp tối ưu không gian là yếu tố rất quan trọng. Đội ngũ Hasa Home trước khi tiến hành đều khảo sát kỹ lưỡng mặt bằng, trao đổi nhu cầu chi tiết với gia chủ để định hướng phong cách ngay từ đầu. Sự minh bạch và tận tâm trong công việc của Hasa Home sẽ mang đến sự hài lòng cho quý khách hàng, đảm bảo mỗi thiết kế nhà ở nói chung và nhà ngang 6m dài 7m nói riêng vẫn đảm bảo được chất lượng sử dụng cao và thẩm mỹ hài hòa.

Trong bài viết trên, Hasa Home đã cùng các bạn đọc tìm hiểu chi tiết về mẫu thiết kế nhà ngang 6m dài 7m. Nếu quý khách còn bất kỳ thắc mắc nào, hãy liên hệ trực tiếp với chúng tôi qua thông tin bên dưới nhé!
Công ty thiết kế kiến trúc Hasa Home
SĐT: 0866 868 926
Website: https://hasahome.com/
Địa chỉ văn phòng: Số 4 Ngõ 123 Trung Kính, Phường Yên Hòa, TP Hà Nội
Nguồn hình ảnh: Sưu tầm


Bài viết liên quan
35+ Mẫu thiết kế nhà rộng 7m dài 13m sang trọng, độc đáo 2026
35+ Mẫu thiết kế nhà mặt tiền 8m sâu 10m hiện đại 2026
Tổng hợp 35+ mẫu nhà vuông đẹp, hiện đại và đầy đủ tiện nghi
Những mẫu thiết kế nhà ngang 10m sâu 8m đẹp và cực kỳ tiện nghi
96+ Mẫu thiết kế nhà mặt tiền 8m sâu 12m đẹp, ấn tượng nhất
40+ Mẫu thiết kế nhà mặt tiền 8m sâu 15m hợp xu hướng 2026