Khi thiết kế nhà ngang 8m dài 14m, kiến trúc sư sẽ thoải mái sáng tạo và bố trí không gian sống sao cho phù hợp nhất với nhu cầu sử dụng của mọi gia đình hiện nay. Nếu bạn cũng đang mong muốn tìm kiếm các ý tưởng thiết kế nhà độc đáo để ứng dụng cho công trình của mình thì đừng bỏ lỡ bài viết sau của Hasa Home.
Ưu điểm khi thiết kế nhà ngang 8m dài 14m
Mẫu thiết kế nhà ngang 8m dài 14m có mặt tiền không quá lớn nhưng lại có chiều sâu dài. Tuy nhiên, xét về tổng thể diện tích, đây cũng là quỹ đất tương đối lớn để bố trí một không gian sống thoải mái và có giá trị thẩm mỹ cao. Nhiều chủ đầu tư đã lựa chọn mẫu nhà ngang 8m dài 14m với các ưu điểm nổi bật sau:
- Đáp ứng đầy đủ công năng: Dù gia đình ít thành viên hay nhiều thành viên, gia chủ vẫn sẽ có bản thiết kế phù hợp. Nếu như gia đình bạn chỉ cần từ 2 – 3 phòng ngủ, để tiết kiệm chi phí, bạn có thể bố trí dạng nhà cấp 4. Nhưng nếu như gia đình bạn cần từ 4 – 5 phòng ngủ, bạn nên xây dựng dạng nhà 2 hoặc 3 tầng để đảm bảo đủ diện tích sử dụng.
- Đa dạng phong cách thiết kế: Với diện tích xây dựng càng lớn thì càng có nhiều phương án lựa chọn. Cho nên với mẫu thiết kế nhà ngang 8m dài 14m thì bạn có thể sử dụng khá nhiều phong cách kiến trúc như: đơn giản, hiện đại, tân cổ điển…
- Rút ngắn thời gian xây dựng: Mẫu nhà diện tích 8x14m có hình chữ nhật, cho nên thay vì thiết kế tới 2 mặt, nhiều chủ đầu tư thường tập trung vào việc thiết kế 1 mặt tiền sao cho đẹp và phù hợp nhất. Từ đó sẽ giúp rút ngắn thời gian thi công cũng như tiết kiệm chi phí hơn.

Xem thêm:
- 35+ Mẫu thiết kế nhà mặt tiền 8m sâu 10m hiện đại 2026
Các phong cách thiết kế nhà ngang 8m dài 14m đang được ưa chuộng
Song song với sự phát triển của xã hội, các phong cách thiết kế kiến trúc mới được du nhập và biến tấu đa dạng cho phù hợp với nước ta. Dưới đây, mời bạn tham khảo các xu hướng thiết kế nhà ngang 8m dài 14m đang được ưa chuộng nhất hiện nay.
Phong cách hiện đại: Đây là xu hướng thiết kế có tính ứng dụng rất cao, phù hợp với nhiều diện tích và chi phí đầu tư khác nhau. Phong cách kiến trúc hiện đại mang tới làn gió mới mẻ, trẻ trung cho tổng thể căn nhà nhờ các đường nét hài hòa và sáng tạo từ các chi tiết cắt xẻ đến sắp xếp hình khối khoa học.
Không sử dụng các tone màu nổi bật để làm điểm nhấn, mẫu thiết kế nhà ngang 8m dài 14m phong cách hiện đại có sự thu hút mãnh liệt nhờ vào quy tắc phối màu độc đáo để đem tới sự thoải mái và dễ chịu cho người nhìn. Ngoài ra, xu hướng phân chia không gian mở trong phong cách thiết kế này cũng giúp căn nhà trở nên rộng rãi và thông thoáng hơn.

Phong cách truyền thống: Thay vì “chạy đua” theo các phong cách thiết kế mới, nhiều chủ đầu tư lại lựa chọn quay về với phong cách thiết kế truyền thống gần gũi và giản dị. Nhìn chung, xu hướng thiết kế nhà theo kiểu truyền thống khá đơn giản, tập trung vào công năng sử dụng, phân chia không gian hài hòa và đảm bảo các yếu tố phong thủy. Phần mái được sử dụng thường là mái ngói, dốc về các phía để tạo thành hệ thống thoát nước cho căn nhà.

Phong cách thiết kế truyền thống mang tới sự nhẹ nhàng và mộc mạc. Ở phong cách này này, nhiều gia chủ thường bố trí thêm sân vườn cho không gian thêm thông thoáng và mát mẻ.
Phong cách Châu Âu: Đặc trưng nổi bật của phong cách kiến trúc Châu Âu là các đường nét, họa tiết hoa văn cầu kỳ được thể hiện nổi bật qua phần vòm mái, cột nhà, ban công… và tất cả các chi tiết chạm khắc khác. Dù đã ra đời từ rất lâu nhưng kiến trúc Châu Âu vẫn gợi được sự thu hút bền vững theo thời gian.
Mẫu thiết kế nhà ngang 8m dài 14m theo phong cách châu Âu sở hữu vẻ ngoài khá đồ sộ, nguy nga và tráng lệ với mặt tiền thiết kế tinh xảo, tỉ mỉ biểu tượng của địa vị, quyền lực của gia chủ. Chất liệu đá tự nhiên và các họa tiết vân đá sẽ được ưa chuộng nhất trong các mẫu thiết kế này.

Xem thêm:
- 40+ Mẫu thiết kế nhà mặt tiền 8m sâu 15m hợp xu hướng 2026
Gợi ý cách bố trí công năng nhà ngang 8m dài 14m hiệu quả
Tùy vào số lượng thành viên trong gia đình cũng như nhu cầu sử dụng, chủ đầu tư có thể thiết kế nhà ngang 8m dài 14m với công năng 1 tầng, 2 tầng, hay 3 tầng tùy theo nhu cầu. Dưới đây là một số cách bố trí công năng cơ bản nhưng hiệu quả cho nhà ngang 8m dài 14m mà bạn có thể tham khảo.
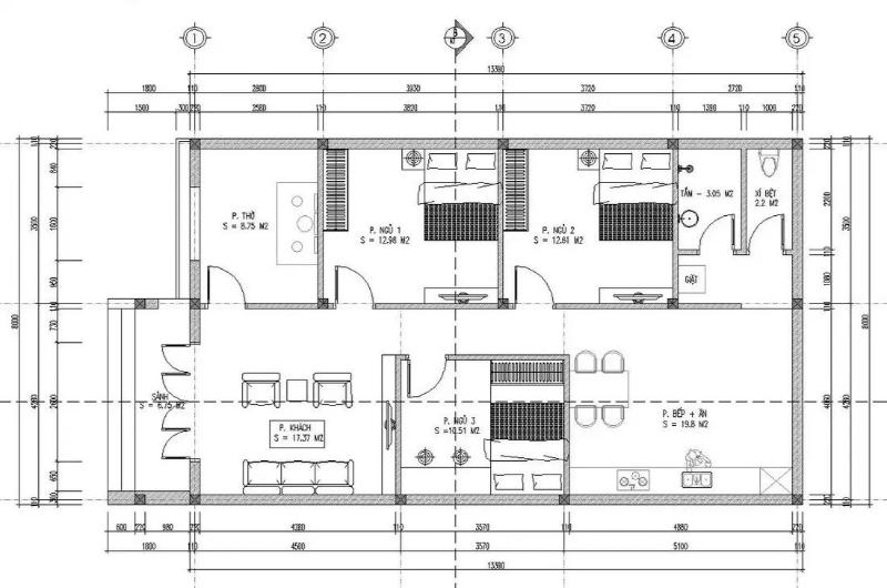
Mẫu nhà ngang 8m dài 14m 1 tầng:
- Tầng 1: Khoảng sân trước nhà được dùng làm chỗ để xe, sau đó là phòng khách, phòng thờ được đặt ngay trong phòng khách, tiếp đến là phòng bếp liền phòng ăn và nhà vệ sinh, 2 phòng ngủ được thiết kế bên cạnh phòng ăn hoặc bố trí ở cuối nhà để đảm bảo yên tĩnh.

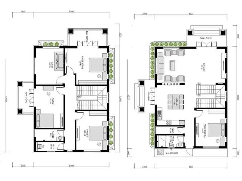
Mẫu nhà ngang 8m dài 14m 2 tầng:
- Tầng 1: Gara để xe trước cửa nhà, sân phụ phía sau, phòng khách liền với phòng ăn và phòng bếp, bố trí 1 phòng ngủ ở bên hông phòng bếp và 1 nhà vệ sinh ở cuối nhà.
- Tầng 2: Không gian phòng thờ, 2 – 3 phòng ngủ, khu vực giặt phơi. Lưu ý, nếu gia đình bạn có người già, thì nên bố trí phòng ngủ ở tầng 1 để thuận tiện cho việc đi lại.

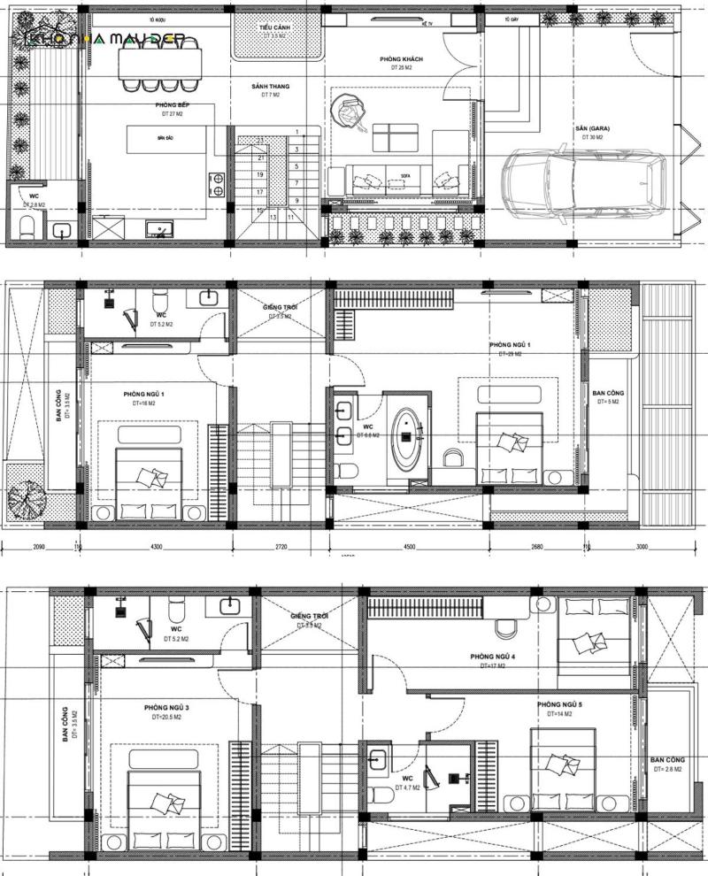
Mẫu nhà ngang 8m dài 14m 3 tầng:
- Tầng 1: Gara trước nhà, sân phụ để vui chơi phía sau, phòng khách, phòng bếp, phòng ăn, 1 phòng ngủ lớn và nhà vệ sinh.
- Tầng 2: 2 phòng ngủ, 1 phòng sinh hoạt chung (phòng đọc sách hoặc phòng chiếu phim) và 1 nhà vệ sinh đặt ở giữa.
- Tầng 3: 2 phòng ngủ, 1 phòng thờ, 1 nhà vệ sinh và khu vực giặt phơi.

Xem thêm:
- 96+ Mẫu thiết kế nhà mặt tiền 8m sâu 12m đẹp, ấn tượng nhất
Những mẫu thiết kế nhà ngang 8m dài 14m ấn tượng năm 2026
Sau đây, Hasa Home xin chia sẻ đến bạn những mẫu thiết kế nhà ngang 8m dài 14m đẹp, ấn tượng và đang được nhiều gia đình lựa chọn nhất hiện nay, mong rằng với những mẫu thiết kế này sẽ giúp chủ đầu tư có thêm các ý tưởng mới cho căn nhà của mình.
Mẫu thiết kế nhà ngang 8m dài 14m có gara để xe
Khi sở hữu mảnh đất diện tích rộng rãi, các chủ đầu tư đều muốn khai thác nhiều tính năng nhất có thể. Cho nên, các mẫu thiết kế nhà ngang 8m dài 14m tích hợp thêm gara ô tô đang là phương án được khá nhiều chủ đầu tư lựa chọn.
Với cách thiết kế này thì khu vực tầng trệt được bố trí lùi sâu một khoảng để tạo thành bãi đỗ xe tiện lợi. Hoặc nếu muốn, chủ đầu tư có thể dành hẳn khoảng sân trước nhà vừa làm chỗ đỗ xe, vừa để trồng cây hoặc hoa cực kỳ đẹp mắt.



Xem thêm:
- 30+ Mẫu thiết kế nhà ngang 6m dài 20m đẹp, hiện đại nhất 2026
Mẫu thiết kế nhà ngang 8m dài 14m phong cách hiện đại
Để tạo cảm giác chắc chắn và vững chãi cho công trình, khi thiết kế nhà ngang 8m dài 14m hiện đại thì các chủ đầu tư thường ưu tiên sử dụng các khối chữ nhật, vuông vắn. Với cách bố trí này sẽ giúp căn nhà vừa mang hơi thở trẻ trung, hiện đại lại vẫn có nét đẳng cấp và độc đáo.
Nếu như khi thiết kế nhà diện tích nhỏ, bạn chỉ có thể sử dụng các tone màu sáng để mở rộng không gian, thì trong mẫu nhà ngang 8m dài 14m này bạn sẽ có đa dạng lựa chọn hơn. Trong đó, xu hướng lựa chọn tone màu gỗ trầm nhẹ nhàng kết hợp cùng chất liệu kính cường lực trong suốt đang được nhiều gia chủ lựa chọn.



Xem thêm:
- 20+ Mẫu thiết kế nhà ngang 6m dài 18m đẹp và tối ưu công năng
Mẫu thiết kế nhà ngang 8m dài 14m phong cách tân cổ điển
Mẫu thiết kế nhà ngang 8m dài 14m theo xu hướng tân cổ điển là sự lựa chọn hoàn hảo cho các chủ đầu tư yêu thích không gian quý phái và xa hoa của tầng lớp quý tộc ngày xưa. Trong các mẫu thiết kế nhà tân cổ điển này thì việc sử dụng các chất liệu cao cấp như gỗ tự nhiên, đá tự nhiên, kim loại mạ vàng…. là việc không thể thiếu. Kiến trúc tân cổ điển cũng có những gam màu đặc trưng, đại diện cho quyền lực và đẳng cấp như: trắng ngà, đỏ đô, đen, xám…



Xem thêm:
- 45+ Mẫu thiết kế nhà 100m2 đẹp, hiện đại và ấn tượng 2026
Chi phí xây dựng nhà ngang 8m dài 14m
Dự tính chi phí xây dựng nhà ngang 8m dài 14m hết bao nhiêu tiền là việc vô cùng quan trọng. Chi phí này không cố định mà sẽ thay đổi linh hoạt dựa theo nhiều yếu tố khác nhau. Sở dĩ, điều này đến từ những yếu tố sau:
- Phong cách thiết kế: Lựa chọn phong cách kiến trúc càng cầu kỳ thì chi phí càng đắt đỏ. Bởi lẽ, kiến trúc sư phải khéo léo sắp xếp nhiều chi tiết hơn, lựa chọn vật liệu cũng tỉ mỉ và công phu hợn. So sánh giữa phong cách đơn giản và tân cổ điển, dĩ nhiên, ngôi nhà tân cổ điển đòi hỏi chi phí xây dựng cao hơn hẳn.
- Diện tích xây dựng: Các căn nhà có diện tích càng lớn thì càng tốn vật liệu và nhân công xây dựng.
- Vật liệu xây dựng: Tuổi thọ của căn nhà phụ thuộc khá nhiều vào chất lượng vật liệu. Theo đó, vật liệu xây dựng chất lượng càng cao thì mức chi phí cần bỏ ra cũng phải tăng theo.
- Kỹ thuật khi thi công: Công trình đòi hỏi sự tỉ mỉ trong quá trình thi công thì tay nghề thợ phải nâng cao tương ứng. Đồng thời sẽ mất nhiều thời gian thi công hơn.
- Thời điểm thi công: Nhiều chủ đầu tư thường thi công nhà vào thời điểm mùa khô để tránh mưa nhiều ảnh hưởng đến chất lượng công trình. Tuy nhiên, đây cũng là thời điểm thị trường vật liệu xây dựng sôi động, cho nên giá thành cũng sẽ cao hơn.
- Vị trí công trình: Xây dựng công trình tại trung tâm thành phố sẽ có mức chi phí đắt đỏ hơn khu vực ngoại ô hoặc nông thôn. Càng gần nội thành, giá nhân công và vật liệu lại càng cao.
Nhìn chung, để sở hữu căn nhà 2 tầng ngang 8m dài 14m với 3 phòng ngủ, bạn sẽ cần đầu tư khoảng 1.2 – 1.5 tỷ đồng.

Xem thêm:
- 35+ Thiết kế nhà mặt tiền 12m sâu 10m tối ưu chi phí 2026
Hasa Home – Đơn vị thiết kế nhà ngang 8m dài 14m giá cả phải chăng
Nếu bạn đang tìm kiếm một đơn vị thiết kế nhà ngang 8m dài 14m chuyên nghiệp, tận tâm trên thị trường hiện nay thì hãy đến ngay với Hasa Home ngay nhé. Lý do là vì chúng tôi sở hữu rất nhiều những điểm mạnh về nhân sự, kinh nghiệm, quy trình và sự bảo hành để mang đến cho khách hàng nhiều lợi ích nhất có thể, cùng với đó là mẫu nhà ưng ý, thời thượng nhất.

Trên đây là tổng hợp những mẫu thiết kế nhà ngang 8m dài 14m đẹp và đang được yêu thích nhất năm 2026. Nếu bạn đang có nhu cầu cần tìm đơn vị thiết kế, thi công nhà uy tín, chuyên nghiệp, vui lòng liên hệ với Hasa Home qua thông tin bên dưới để được hỗ trợ.
Công ty thiết kế kiến trúc Hasa Home
SĐT: 0866 868 926
Website: https://hasahome.com/
Địa chỉ văn phòng: Số 4 Ngõ 123 Trung Kính, Phường Yên Hòa, TP Hà Nội
Nguồn hình ảnh: Sưu tầm


Bài viết liên quan
35+ Mẫu thiết kế nhà rộng 7m dài 13m sang trọng, độc đáo 2026
35+ Mẫu thiết kế nhà mặt tiền 8m sâu 10m hiện đại 2026
Tổng hợp 35+ mẫu nhà vuông đẹp, hiện đại và đầy đủ tiện nghi
Những mẫu thiết kế nhà ngang 10m sâu 8m đẹp và cực kỳ tiện nghi
96+ Mẫu thiết kế nhà mặt tiền 8m sâu 12m đẹp, ấn tượng nhất
40+ Mẫu thiết kế nhà mặt tiền 8m sâu 15m hợp xu hướng 2026