Việc nắm được bản vẽ thiết kế nhà 4x12m không chỉ giúp bạn biết được cách bố trí công năng bên trong căn nhà mà còn giúp bạn tiết kiệm tối đa các khoản chi phí thi thi công. Sau đây, hãy cùng Hasa Home khám phá các bản vẽ nhà 4x12m tối ưu công năng và đang được nhiều gia chủ lựa chọn nhất hiện nay.
Tại sao cần phải có bản vẽ thiết kế nhà 4x12m?
Chắc hẳn sẽ có không ít gia chủ đang thắc mắc rằng có cần thiết phải có bản vẽ nhà 4x12m hay không. Thực tế đã cho thấy trong thi công xây dựng nhà ở, không chỉ riêng mẫu nhà 4x12m mà bất cứ loại hình kiến trúc nào cũng cần phải có bản vẽ thiết kế.
Trong đó một bản vẽ thiết kế nhà hoàn chỉnh, phù hợp sẽ có những ưu điểm sau:
- Tiết kiệm chi phí: Chi phí là một trong những vấn đề được các gia chủ quan tâm hàng đầu trong việc thiết kế thi công nhà ở. Theo đó các bản vẽ thiết kế nhà 4x12m sẽ giúp cho các gia chủ có thể tính toán được mức chi phí cần bỏ ra cho công trình nhà ở của mình, từ đó hạn chế tối đa các mức chi phí phát sinh không đáng có.
- Ước lượng vật tư xây dựng: Dựa vào các bản vẽ nhà, gia chủ cũng có thể thấy được công trình của mình cần những loại vật tư nào, khối lượng ra sao, đảm bảo cho công trình của bạn được thi công thuận lợi, đúng tiến độ. Đồng thời các gia chủ cũng có thể căn chỉnh được khối lượng vật tư sao cho phù hợp nhất, không bị mua dư thừa quá nhiều gây lãng phí.

- Đảm bảo tính thẩm mỹ: Dựa vào các bản vẽ, bạn cũng có thể nhìn thấy tổng quát nhất về toàn bộ công trình của mình. Bên cạnh đó trong quá trình thi công bạn cũng có thể dễ dàng kiểm soát được công trình của mình có đang thi công đúng công năng, đúng mong muốn của gia đình hay không. Từ đó kịp thời sửa chữa theo đúng ý muốn của mình.
Đặc điểm kiến trúc của mẫu nhà 4x12m
Trước khi tìm hiểu về các bản vẽ thiết kế nhà 4x12m hiện nay, bạn cũng cần phải nắm được các đặc điểm kiến trúc của mẫu nhà này. Mẫu nhà này thường được thiết kế theo kiểu nhà ống hoặc nhà cấp 4 với phần mặt tiền khoảng 4m và chiều sâu là 12m.

Các mẫu nhà 4x12m cao tầng thường sẽ giúp cho căn nhà của bạn có thêm nhiều diện tích sử dụng và rộng rãi hơn. Tuy nhiên việc xây nhà cao tầng cũng sẽ khiến cho các khu vực tầng dưới bị hạn chế ánh sáng.
Vì vậy với mẫu nhà này nhiều gia đình thường sẽ lựa chọn sử dụng giếng trời để lưu thông không khí và đón nhiều ánh sáng hơn. Mặc dù có diện tích mặt tiền nhỏ nhưng mẫu nhà này có thể phù hợp với nhiều phong cách khác nhau, đáp ứng đa dạng sở thích của các gia đình hiện nay.
Có nên thi công nhà 4x12m không?
Có thể thấy mẫu bản vẽ thiết kế nhà 4×12 ngày càng được nhiều gia đình ưa chuộng nhưng vẫn còn không ít gia chủ thắc mắc rằng có thực sự nên thi công mẫu nhà này hay không? Vì vậy nếu bạn vẫn còn đang băn khoăn với mẫu nhà này thì có thể tham khảo ngay các nội dung bên dưới đây.
Ưu điểm của nhà 4x12m
- Diện tích tối ưu: Mẫu nhà 4x12m được coi là giải pháp hoàn hảo cho các gia đình với thị trường nhà đất ngày càng tăng cao như hiện nay. Với diện tích này vẫn có thể đáp ứng được mọi nhu cầu sử dụng của gia đình bạn, mang lại sự thuận tiện nhất cho các thành viên.
- Tính thẩm mỹ cao: Các mẫu nhà ở 4x12m có thể phù hợp với nhiều phong cách thiết kế khác nhau như hiện đại, cổ điển, tân cổ điển,… Tùy theo sở thích của mỗi gia chủ mà bạn có thể lựa chọn các thiết kế dành riêng cho căn nhà của mình.

- Chi phí thi công rẻ: Các mẫu nhà 4x12m hiện nay đều có mức chi phí tối ưu, không quá tốn kém như một số mẫu nhà khác. Trung bình các thiết kế này chỉ giao động từ 600 triệu đến gần 1 tỷ đồng nên các gia đình có thể cân nhắc để lựa chọn mức chi phí phù hợp nhất.
- Thi công nhanh gọn: Bên cạnh việc tiết kiệm chi phí thì mẫu nhà này cũng có thời gian xây dựng tương đối nhanh chóng bởi bản vẽ thiết kế nhà 4×12 không quá phức tạp như các loại hình nhà ở khác.
Nhược điểm của nhà 4x12m
Bên cạnh các ưu điểm ở trên thì mẫu nhà này cũng sẽ có một số hạn chế mà các gia chủ có thể cân nhắc để khắc phục như sau:
- Những mẫu thiết kế nhà 4x12m thường bị hạn chế về diện tích mặt tiền nên sẽ khó để thiết kế mặt tiền theo mong muốn của gia đình.
- Các thiết kế nhà 4x12m cao tầng thường sẽ bị hạn chế ánh sáng ở các tầng dưới.

Xem thêm:
- 25+ Mẫu thiết kế nhà 4x10m 3 phòng ngủ đẹp, tối ưu chi phí
Các bản vẽ thiết kế nhà 4x12m phổ biến hiện nay
Trước khi chính thức bắt tay vào thi công các mẫu nhà diện tích 4x12m, bạn cũng cần phải lên các bản vẽ thiết kế cho căn nhà của mình. Dưới đây sẽ là một số bản vẽ thiết kế nhà 4×12 phổ biến nhất hiện nay mà bạn có thể tham khảo.
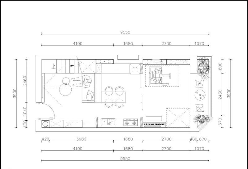
Bản vẽ thiết kế nhà 4x12m 1 tầng
Thiết kế nhà 4x12m 1 tầng không quá phức tạp. Theo đó bạn chỉ cần sắp xếp, bố trí các không gian sử dụng sao cho phù hợp và hiệu quả nhất, đảm bảo có thể đáp ứng tối đa công năng sử dụng của từng khu vực.

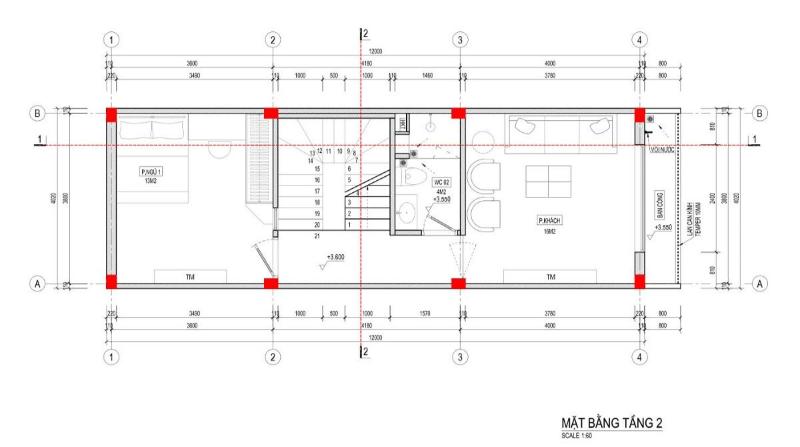
Bản vẽ thiết kế nhà 4x12m 2 tầng
Bản vẽ nhà 2 tầng 4x12m sẽ cho bạn thấy được cách bố trí các khu vực trong căn nhà của bạn. Với mẫu thiết kế nhà ống 2 tầng diện tích 4x12m này bạn có thể bố trí từ 2 – 3 phòng ngủ là phù hợp nhất.

Bản vẽ thiết kế nhà 4x12m 3 tầng
Để đáp ứng nhu cầu sử dụng của các gia đình đông thành viên thì bản vẽ thiết kế nhà 4×12 3 tầng sẽ là sự lựa chọn tối ưu dành cho bạn. Trong bản vẽ thiết kế nhà 3 tầng 4x12m, các gia chủ sẽ có thể hình dung được chính xác cách bố trí các khu vực công năng cũng như diện tích của từng khu vực đó như thế nào. Từ đó sẽ giúp bạn có thể điều chỉnh để phù hợp nhất với nhu cầu sử dụng của gia đình mình.

Bản vẽ thiết kế nhà 4x12m có gác lửng
Thiết kế nhà 4x12m có gác lửng cũng là lựa chọn tối ưu dành cho các gia đình đông thành viên nhưng không có điều kiện tài chính tốt. Mẫu thiết kế nhà 4×12 có thêm gác lửng giúp bạn có thêm không gian tầng lửng để bố trí phòng ngủ, phòng thờ hoặc phòng làm việc tùy theo nhu cầu của mỗi gia đình hiện nay.

Xem thêm:
- 35+ Mẫu thiết kế nhà 4x10m có tầng lửng ấn tượng năm 2026
Cách đọc bản vẽ thiết kế nhà 4x12m đơn giản
Để có thể nắm rõ được các nội dung bên trong bản vẽ nhà 4x12m, bạn sẽ cần phải nắm được một vài yếu tố quan trọng dưới đây:
Cách xem ký hiệu trong bản vẽ
Đầu tiên để đọc được các bản vẽ nhà, bạn cần phải hiểu được các ký tự cơ bản thường xuất hiện trong các bản vẽ xây dựng hiện nay.





Cách đọc bản vẽ
Phần kiến trúc: Phần kiến trúc của bản vẽ thiết kế nhà 4×12 sẽ bao gồm mặt bằng, mặt cắt, mặt đứng cùng các chi tiết khác như cầu thang, cửa sổ, cửa ra vào,… Trong đó cụ thể:
- Mặt bằng sẽ giúp gia chủ nắm được cách bố trí đồ nội thất, cửa ra vào,… Bên cạnh đó cũng thể hiện kích thước của các yếu tố đó.
- Mặt đứng là hình chiếu thẳng góc giúp gia chủ thấy được các yếu tố bên ngoài của căn nhà. Từ đó mà bạn có thể nhìn thấy được hình dáng tổng thể của căn nhà.
- Mặt cắt sẽ giúp gia chủ có thể nắm được không gian bên trong căn nhà một cách tổng quát nhất.

Phần kết cấu: Bản vẽ kết cấu sẽ cho bạn thấy phần cốt thép bên trong để bạn có thể hình dung được kết cấu của cả căn nhà, xem đã đạt đủ các tiêu chuẩn kỹ thuật hay chưa.

Xem thêm:
- 15+ Mẫu thiết kế nhà 3x12m thông thoáng và đầy đủ tiện nghi
Những mẫu thiết kế nhà 4x12m được yêu thích nhất hiện nay
Bên cạnh việc tìm hiểu các bản vẽ thiết kế nhà 4x12m, bạn cũng có thể tham khảo các mẫu nhà 4x12m được yêu thích nhất hiện nay để có thêm các ý tưởng thiết kế không gian sống của gia đình mình.
Mẫu thiết kế nhà 4x12m cấp 4
Mẫu nhà cấp 4 4x12m có diện tích không quá lớn cũng là lựa chọn khá phổ biến của các gia đình ở vùng ngoại ô, nông thôn. Mẫu nhà cấp 4 này có thể phù hợp với các gia đình có từ 2 – 3 thành viên với mức chi phí tối ưu và thời gian thi công nhanh chóng.



Xem thêm:
- 55+ Mẫu thiết kế nhà ngang 6m dài 7m đẹp và tiện nghi
Mẫu thiết kế nhà 4x12m 2 tầng
Thiết kế nhà 2 tầng 4x12m được cho là một trong những mẫu thiết kế phổ biến nhất với các gia đình ở thành phố hiện nay. Mẫu nhà 2 tầng đẹp này vẫn có thể đáp ứng được tối đa nhu cầu sử dụng của các gia đình Việt hiện nay mà lại tiết kiệm được rất nhiều chi phí thi công.



Xem thêm:
- 15+ Mẫu thiết kế nhà rộng 6m dài 9m đẹp dẫn đầu xu hướng 2026
Mẫu thiết kế nhà 4x12m 3 tầng
Mẫu nhà ở 3 tầng 4x12m cũng là kiểu thiết kế nhà được rất nhiều gia đình quan tâm hiện nay với diện tích sử dụng tương đối rộng rãi và phù hợp với nhiều gia đình khác nhau. Với mẫu nhà 3 tầng đẹp này sẽ được bố trí 3 – 4 phòng ngủ, thoải mái cho gia đình 4 – 5 người sử dụng với đầy đủ công năng cơ bản.



Xem thêm:
- 40+ Mẫu thiết kế nhà 5x12m đẹp và tối ưu công năng 2026
Những kinh nghiệm thiết kế nhà 4x12m mà bạn nên biết
Trong quá trình thi công nhà 4x12m, bạn cũng cần phải nắm được một số các kinh nghiệm thi công để giúp cho căn nhà của bạn có thể hoàn thiện nhanh chóng và hiệu quả nhất.
Tối giản nội thất nhà 4x12m
Việc lựa chọn nội thất như thế nào cũng đóng một vai trò vô cùng quan trọng trong các thiết kế nhà 4x12m hiện nay. Theo đó bạn nên sử dụng các thiết kế nội thất thông minh, đa dạng chức năng và có gam màu tươi sáng là phù hợp nhất.
Ngoài ra để tối ưu diện tích sử dụng thì bạn nên tối giản số lượng nội thất bên trong căn nhà của mình hoặc lựa chọn các sản phẩm có kích thước nhỏ gọn nhất.

Sử dụng các gam màu sáng
Một bí quyết giúp cho căn nhà 4x12m của gia đình bạn trở nên rộng rãi, thông thoáng hơn chính là lựa chọn sử dụng các tone màu sáng trong thiết kế nhà như màu be, trắng, xám hoặc kem,… Không nên lựa chọn các gam màu tối bởi nó sẽ tạo cho căn nhà của bạn cảm giác bí bách, chật chội.

Tận dụng tối đa khoảng trống
Một số chi tiết khoảng trống trong căn nhà của bạn có thể bị bỏ qua như gầm cầu thang, vách tường,… Vì vậy tốt nhất là bạn nên tận dụng tối đa các khu vực này như đóng kệ tường, đặt sát gầm cầu thang,… đảm bảo có thể tối ưu triệt để mọi không gian trong căn nhà của mình.

Xem thêm:
- 45+ Mẫu thiết kế nhà 4×20 có gara tiện nghi và sang trọng 2026
Những bản vẽ thiết kế nhà 4x12m tối ưu công năng chỉ có tại Hasa Home
Hasa Home là một trong những đơn vị sở hữu rất nhiều bản vẽ thiết kế nhà 4x12m cực chi tiết, khoa học và tối ưu diện tích trên thị trường hiện nay. Với hơn 5 năm kinh nghiệm cùng với đội ngũ kiến trúc sư chuyên nghiệp, chúng tôi chắc chắn sẽ mang đến mẫu thiết kế nhà 4x12m đẹp, hiện đại và tối ưu kinh phí nhất cho quý khách.

Trên đây là các mẫu bản vẽ thiết kế nhà 4x12m đẹp, ấn tượng với chi phí phù hợp nhất trên thị trường hiện nay. Hy vọng với những chia sẻ từ Hasa Home sẽ giúp cho bạn có những lựa chọn và phương án thi công nhà 4x12m phù hợp, hiệu quả nhất.
Công ty thiết kế kiến trúc Hasa Home
SĐT: 0866 868 926
Website: https://hasahome.com/
Địa chỉ văn phòng: Số 4 Ngõ 123 Trung Kính, Phường Yên Hòa, TP Hà Nội
Nguồn hình ảnh: Sưu tầm


Bài viết liên quan
35+ Mẫu thiết kế nhà rộng 7m dài 13m sang trọng, độc đáo 2026
35+ Mẫu thiết kế nhà mặt tiền 8m sâu 10m hiện đại 2026
Tổng hợp 35+ mẫu nhà vuông đẹp, hiện đại và đầy đủ tiện nghi
Những mẫu thiết kế nhà ngang 10m sâu 8m đẹp và cực kỳ tiện nghi
96+ Mẫu thiết kế nhà mặt tiền 8m sâu 12m đẹp, ấn tượng nhất
40+ Mẫu thiết kế nhà mặt tiền 8m sâu 15m hợp xu hướng 2026